Вхід на сайт

Ел. пошта:
Пароль:

Реєстрація на сайті

Призвіще: Область:
Ім'я: Населений пункт:
    По батькові: Номер телефону:
    Ел. пошта: Компанія:
      Пароль: Посада:
      Повторіть пароль: Рік початку роботи:
      Фото:
      З правилами розміщення об'єктів погоджуюсь

      Забули пароль?

      Вкажіть ел. пошту — ми надішлемо Вам новий пароль для входу
      Ел. пошта:

      Проблема на сайті

      Закрити
      Ваш e-mail:
      (необов'язково)
      Розкажіть нам, що сталось
      112_1.jpg

      Кукоби — Продається квартира

      (г. Полтава, Ленинский район)

      32000 $

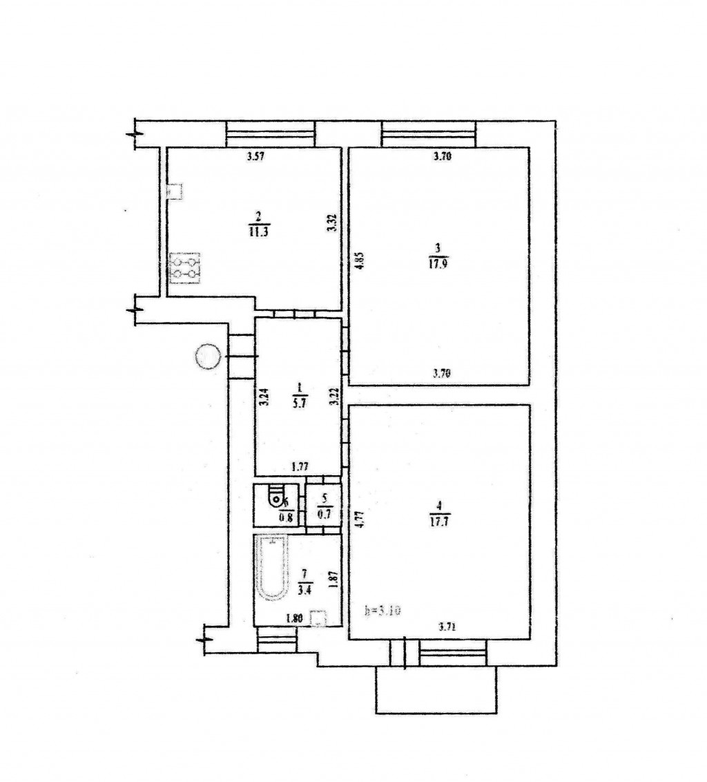
      Загальна площа: 58 кв.м

      Жила площа: 35.6 кв.м

      Площа кухні: 11.3 кв.м

      Кімнат: 2

      Поверх: 2

      К-ть поверхів: 4

      Знижка! 2-кімнатна квартира на Подолі, вул. Кукоби - Ціну знижено!
      Вартість знижено з $37000 до $32000!

      Пропонуємо до продажу просторну 2-кімнатну квартиру під ремонт у популярному районі Подолу, недалеко від вулиці Кукоби, 33.

      Характеристики квартири:
      • Загальна площа: 58,0 м²
      • Житлова площа: 35,6 м²
      • Кухня: 11,3 м²
      • Поверх: 2
      • Балкон
      • Не кутова
      • Комора в підвалі
      • Висота стелі: 3,1 м
      Комунікації:
      • Централізовані
      • Гаряча вода: колонка
      • Встановлені лічильники: світло, газ, вода
      Нова ціна: $32 000
      Додатково сплачуються послуги агентства нерухомості.
      Скористайтесь можливістю придбати квартиру за зниженою ціною в одному з найпривабливіших районів міста!

      Надіслати скаргу

      Закрити
      Поскаржитися на об'єкт «Кукоби (г. Полтава, Ленинский район)»
      Ваш коментар:(Необов'язково)
      Ваша скарга буде надіслана ріелтору, що розмістив об'єкт, а також адміністрації сайту АФНУ.
      Ваше ім'я:
      (Обов'язково)
      Ваш e-mail для відповіді:
      (Обов'язково)

      Вам также могут подойти

      ул. Баленка (г. Полтава, Киевский район) - Продається квартира, 30000 $ - АФНУ

      Оновлено: 28 липня

      Розміщено: 2 вересня 2024

      Продається квартира

      1 кімн., площа 39/20/8, поверх 3/5

      г. Полтава, ул. Баленка

      30000 $ без комісії

      Остапченко Александр Степанович

      соучредитель (Агентство недвижимости "Альянс риэлти" Полтава)

      Продаж 1 кімнатної квартири підвищеної комфортності розташованої на м-ні Браїлки, р-н вул. Баленка, 1

      Характеристика квартири:
      - загальна площа 39,9 м.кв;
      - кімната- 20,5 м.кв;
      - кухня – 8,1 м.кв;…

      Детальніше

      Боровиковського (г. Полтава, Киевский район) - Продається квартира, 35000 $ - АФНУ

      Оновлено: 24 вересня

      Розміщено: 12 листопада 2024

      Продається квартира

      1 кімн., площа 43.8/22.9/10.7, поверх 10/11

      г. Полтава, Боровиковського

      35000 $

      Остапченко Александр Степанович

      соучредитель (Агентство недвижимости "Альянс риэлти" Полтава)

      Продаж 1 кімнатної квартири в новобудові на Огнівки по бульвару Боровиковського

      Характеристика квартири:
      - загальна площа 43, 8 м2;
      - житлова площа 22, 9 м2;
      - кухня 10, 7 м2;…

      Детальніше

      пер. Пушкіна, 88А (г. Полтава, Киевский район) - Продається квартира, 37000 $ - АФНУ

      Оновлено: 24 вересня

      Розміщено: 21 серпня

      Продається квартира

      3 кімн., площа 66.3/41/10, поверх 4/4

      г. Полтава, пер. Пушкіна, 88А

      37000 $

      Остапченко Александр Степанович

      соучредитель (Агентство недвижимости "Альянс риэлти" Полтава)

      ПРОДАЖ 3-КІМНАТНОЇ КВАРТИРИ
      Розташування:
      Центральна частина міста, район зупинки ОЦЕВУМ
      район вул. Юліана Матвійчука, 88А

      Характеристики квартири:
      -загальна площа 66,3 м2
      -житлова площа 41 м2
      -кухня 10 м2
      -четвертий поверх…

      Детальніше

      Коментарі