Вхід на сайт

Ел. пошта:
Пароль:

Реєстрація на сайті

Призвіще: Область:
Ім'я: Населений пункт:
    По батькові: Номер телефону:
    Ел. пошта: Компанія:
      Пароль: Посада:
      Повторіть пароль: Рік початку роботи:
      Фото:
      З правилами розміщення об'єктів погоджуюсь

      Забули пароль?

      Вкажіть ел. пошту — ми надішлемо Вам новий пароль для входу
      Ел. пошта:

      Проблема на сайті

      Закрити
      Ваш e-mail:
      (необов'язково)
      Розкажіть нам, що сталось
      112_1.jpg

      без комісії вул.Молодіжна, 1 — Продається будинок

      (пгт. Ворзель, г. Ирпень)

      200000 $

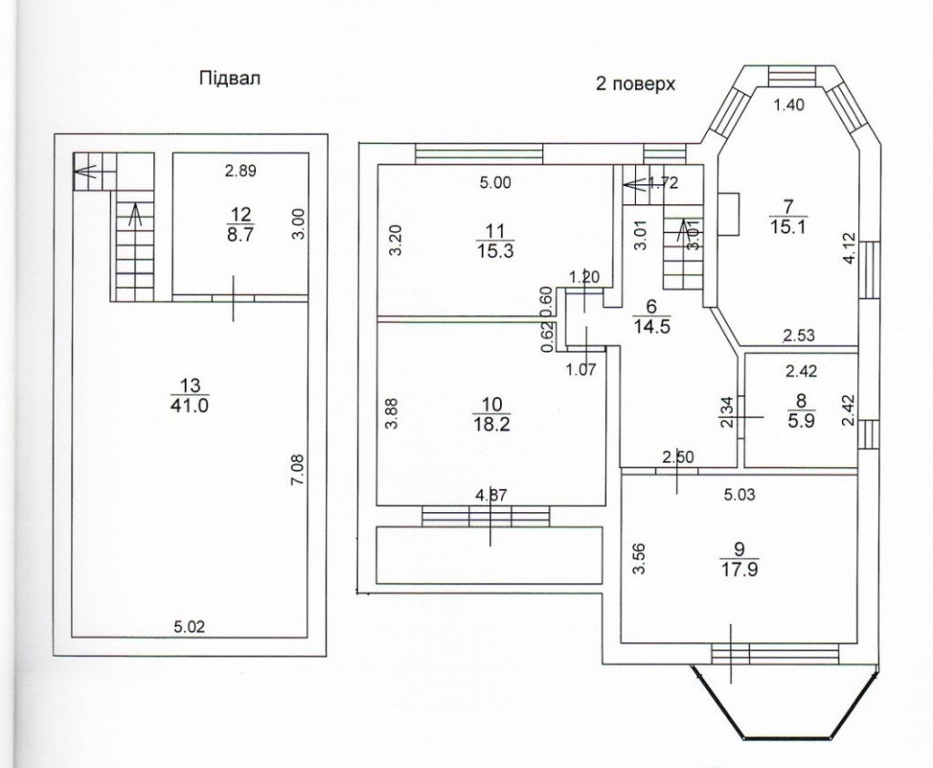
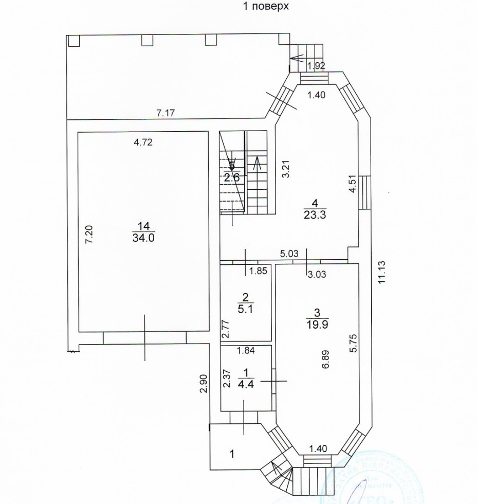
      Загальна площа: 225 кв.м

      Площа ділянки: 4 сот

      Кімнат: 5

      К-ть поверхів: 2

      ID:600 Пропонується до продажу сучасний двоповерховий дуплекс площею 225,9м², розташований на затишній ділянці площею 4 сотки. Будинок має п'ять просторих житлових кімнат із роздільним плануванням, що забезпечує комфортне проживання для великої родини. На першому поверсі розташовані стильна кухня, затишна вітальня, а також санвузол з душовою кабіною. На другому поверсі знаходяться чотири спальні та ще один санвузол із ванною. Дві засклені лоджії додають додатковий простір і можливість насолоджуватися краєвидами в будь-яку пору року. Будинок збудований з якісних матеріалів і має сучасний ремонт. Він укомплектований добротними меблями та сучасною побутовою технікою, що дозволяє заселитися одразу без додаткових витрат.
      Підвал будинку розділений на дві функціональні зони: прохолодну комору для зберігання запасів і надійне укриття. У гаражі, оснащеному автоматичними воротами, проведено світло та воду. На території будинку також є чудова тераса для літнього відпочинку, зона для барбекю, невеликий господарський двір та сад. Будинок підключений до всіх необхідних комунікацій: природний газ, водопровід, газовий котел для опалення та гарячої води. Цей дуплекс - ідеальний вибір для тих, хто цінує комфорт, якість і спокійне життя в затишному районі.

      Надіслати скаргу

      Закрити
      Поскаржитися на об'єкт «вул.Молодіжна, 1 (пгт. Ворзель, г. Ирпень)»
      Ваш коментар:(Необов'язково)
      Ваша скарга буде надіслана ріелтору, що розмістив об'єкт, а також адміністрації сайту АФНУ.
      Ваше ім'я:
      (Обов'язково)
      Ваш e-mail для відповіді:
      (Обов'язково)

      Вам также могут подойти

      вул.Соснова (пгт. Ворзель, г. Ирпень) - Продається будинок, 170000 $ - АФНУ

      Оновлено: 30 грудня 2025

      Розміщено: 20 травня 2025

      Продається будинок

      пгт. Ворзель, г. Ирпень, вул.Соснова

      170000 $ без комісії

      Черкавська Діана Миколаївна

      ID:672 Шукаєш затишний будинок? В нас є чудова пропозиція саме для тебе! Будинок розташований у лісовій частині селища Ворзель, по вулиці Соснова. Загальна площа будинку 130м2. Має дві спальні кімнати,…

      Детальніше

      Коментарі