Вхід на сайт

Ел. пошта:
Пароль:

Реєстрація на сайті

Призвіще: Область:
Ім'я: Населений пункт:
    По батькові: Номер телефону:
    Ел. пошта: Компанія:
      Пароль: Посада:
      Повторіть пароль: Рік початку роботи:
      Фото:
      З правилами розміщення об'єктів погоджуюсь

      Забули пароль?

      Вкажіть ел. пошту — ми надішлемо Вам новий пароль для входу
      Ел. пошта:

      Проблема на сайті

      Закрити
      Ваш e-mail:
      (необов'язково)
      Розкажіть нам, що сталось
      112_1.jpg

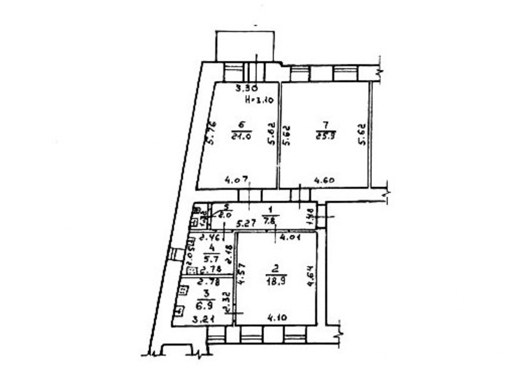
      ул. Большая Арнаутская, 125 — Продається квартира

      (г. Одесса, Приморский район)

      59500 $

      Загальна площа: 89 кв.м

      Жила площа: 66 кв.м

      Площа кухні: 14 кв.м

      Кімнат: 3

      Поверх: 2

      К-ть поверхів: 3

      Большая Арнаутская / Старопортофранковская, продам квартиру, расположенную на 2 этаже красивого и крепкого 3-ехэтажного старинного дома, 89/66/7 кв.м, три шикарные раздельные комнаты (26 + 21 + 19 кв.м), кухня с возможностью увеличения до 14 кв.м, балкон, сан. узел тоже можно увеличить до 14 кв.м превратив в его в красивейшую ванную комнату, высота потолков 3,2 метра, правильная и удобная планировка, автономное отопление и горячая вода (АГВ и колонка), ухоженная фасадная парадная с мраморной лестницей, просторная и очень перспективная квартира под ремонт и реализацию Ваших фантазий и идей в отличном районе в самом центре города!

      Красотов Алексей

      Красотов Алексей

      Директор филиала (Александр-N) , Риэлтор (Александр-N) , Центральный филиал (Александр-N)

      +380 (50) 333-30... Показати номер телефона +380 (50) 333-30-45, +380 (97) 577-77-37

      Поскаржитися на об'єкт

      Надіслати скаргу

      Закрити
      Поскаржитися на об'єкт «ул. Большая Арнаутская, 125 (г. Одесса, Приморский район)»
      Ваш коментар:(Необов'язково)
      Ваша скарга буде надіслана ріелтору, що розмістив об'єкт, а також адміністрації сайту АФНУ.
      Ваше ім'я:
      (Обов'язково)
      Ваш e-mail для відповіді:
      (Обов'язково)

      Вам также могут подойти

      ул. Среднефонтанская, 30А (г. Одесса, Приморский район) - Продається квартира, 52000 $ - АФНУ

      Оновлено: 9 жовтня

      Розміщено: 15 жовтня 2023

      Продається квартира

      3 кімн., площа 70/45/8, поверх 5/5

      г. Одесса, ул. Среднефонтанская, 30А

      52000 $

      Красотов Алексей

      Директор филиала (Александр-N) , Риэлтор (Александр-N) , Центральный филиал (Александр-N)

      Среднефонтанская / Братьев Черепановых, продам квартиру, расположенную на пятом этаже теплого пятиэтажного кирпичного дома-спецпроекта 1974 года постройки, 70/45/8 кв.м, три раздельные спальни (19 + 16 + 11 кв.м), удобная кухня,…

      Детальніше

      ул. Успенская, 115 (г. Одесса, Приморский район) - Продається квартира, 59000 $ - АФНУ

      Оновлено: 9 жовтня

      Розміщено: 4 березня 2024

      Продається квартира

      3 кімн., площа 65/48/10, поверх 1/3

      г. Одесса, ул. Успенская, 115

      59000 $

      Красотов Алексей

      Директор филиала (Александр-N) , Риэлтор (Александр-N) , Центральный филиал (Александр-N)

      Успенская / Бориса Литвака, продам квартиру, расположенную на очень высоком бельэтаже красивого старинного трехэтажного дома, 65/48/10 кв. м, три смежно-раздельных комнаты, удобная кухня, сан. узел совмещен с душевой кабиной, все…

      Детальніше

      ул. Среднефонтанская, 30А (г. Одесса, Приморский район) - Продається квартира, 52000 $ - АФНУ

      Оновлено: 9 жовтня

      Розміщено: 15 жовтня 2023

      Продається квартира

      3 кімн., площа 70/45/8, поверх 5/5

      г. Одесса, ул. Среднефонтанская, 30А

      52000 $

      Красотов Алексей

      Директор филиала (Александр-N) , Риэлтор (Александр-N) , Центральный филиал (Александр-N)

      Среднефонтанская / Братьев Черепановых, продам квартиру, расположенную на пятом этаже теплого пятиэтажного кирпичного дома-спецпроекта 1974 года постройки, 70/45/8 кв.м, три раздельные спальни (19 + 16 + 11 кв.м), удобная кухня,…

      Детальніше

      Коментарі