Вхід на сайт

Ел. пошта:
Пароль:

Реєстрація на сайті

Призвіще: Область:
Ім'я: Населений пункт:
    По батькові: Номер телефону:
    Ел. пошта: Компанія:
      Пароль: Посада:
      Повторіть пароль: Рік початку роботи:
      Фото:
      З правилами розміщення об'єктів погоджуюсь

      Забули пароль?

      Вкажіть ел. пошту — ми надішлемо Вам новий пароль для входу
      Ел. пошта:

      Проблема на сайті

      Закрити
      Ваш e-mail:
      (необов'язково)
      Розкажіть нам, що сталось
      112_1.jpg

      Троянівська, 8 — Продається таунхаус

      (г. Житомир, Богунский район)

      77000 $

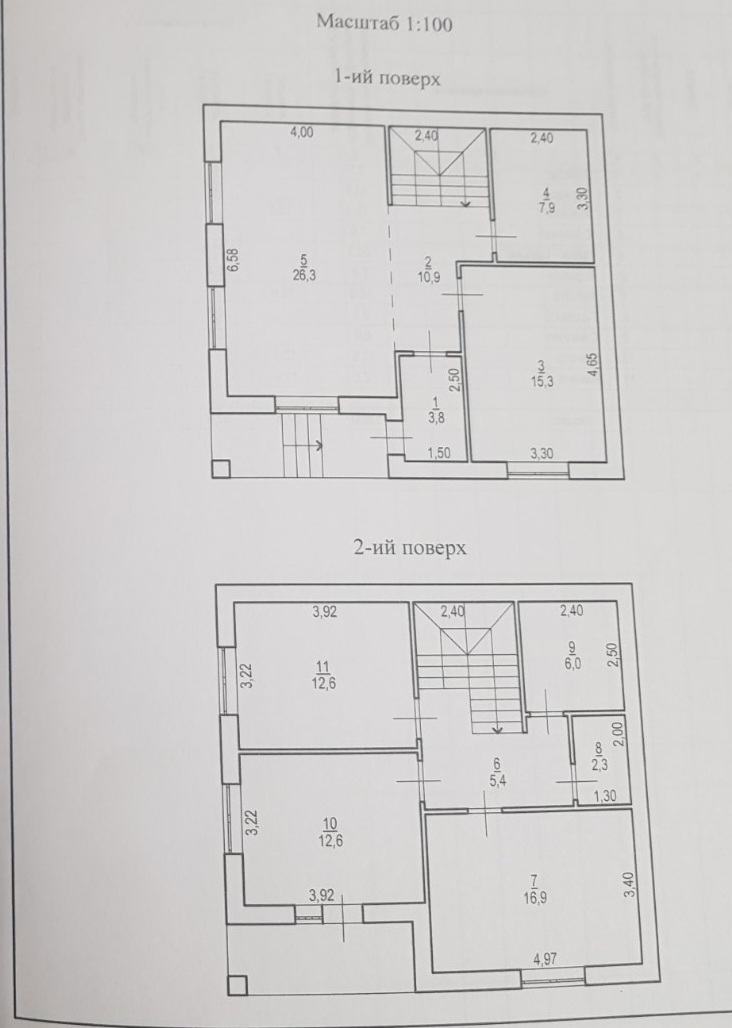
      Загальна площа: 120 кв.м

      Кімнат: 4

      К-ть поверхів: 2

      Центр двоповерхова частина будинку ( поквартирна ) 120 м² з ділянкою 2.5 сот в центрі міста ( 1 км від центру )
      по вул.Троянівська (р-н Подолу).

      Проект чотирьох квартирного будинку в англійському стилі (таунхаус).

      Кожна частина будинку розміщена на своїй приватизованій земельній ділянці 2.5 сот з окремим подвір'ям та кадастровим номером, огорожа, що входить у вартість об'єкту.

      На першому поверсі обʼєкту розташована кухня-студія + окрема кімната та санвузол. На другому поверсі розташовані три окремі кімнати, гардеробна та ще один санвузол.

      Усі комунікації заведені в будинок.
      Вода централізована. Лічильники. Каналізація - септик з дренажним полем.

      До будинку підведено світло з достатньою потужністю.
      В запланованому проекті - електроопалення.

      Об'єкт виконаний з дороговартісних матеріалів.
      Піноблок Aeroc. Віконні системи Veka. Панельні перекриття. Дах з металочерепиці.

      Будинок введений в експлуатацію.
      Кожна частина має присвоєні адреси та свої окремі заїзди.

      Поруч знаходиться школа та дитсадок. До зупинки міського транспорту 2 хв.

      Надіслати скаргу

      Закрити
      Поскаржитися на об'єкт «Троянівська, 8 (г. Житомир, Богунский район)»
      Ваш коментар:(Необов'язково)
      Ваша скарга буде надіслана ріелтору, що розмістив об'єкт, а також адміністрації сайту АФНУ.
      Ваше ім'я:
      (Обов'язково)
      Ваш e-mail для відповіді:
      (Обов'язково)

      Коментарі