Вхід на сайт

Ел. пошта:
Пароль:

Реєстрація на сайті

Призвіще: Область:
Ім'я: Населений пункт:
    По батькові: Номер телефону:
    Ел. пошта: Компанія:
      Пароль: Посада:
      Повторіть пароль: Рік початку роботи:
      Фото:
      З правилами розміщення об'єктів погоджуюсь

      Забули пароль?

      Вкажіть ел. пошту — ми надішлемо Вам новий пароль для входу
      Ел. пошта:

      Проблема на сайті

      Закрити
      Ваш e-mail:
      (необов'язково)
      Розкажіть нам, що сталось
      112_1.jpg

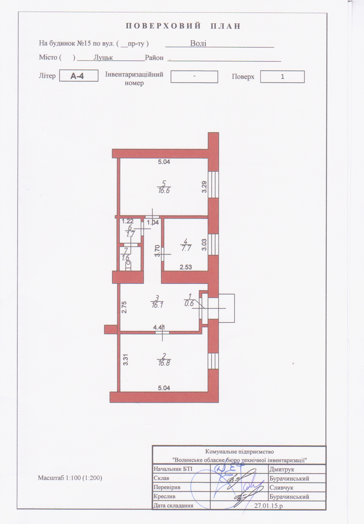
      Волі, 15 — Продається офіс

      (г. Луцк)

      90000 $

      Загальна площа: 61 кв.м

      Кімнат: 3

      ПРОДАЖ офісного приміщення площею 61,1 кв.м., в центрі м. Луцька (пр. Волі, 15)

      Характеристики:
      • Перший поверх
      • Окремий вхід
      • Площа - 61,1 кв.м.
      • 3 кабінети
      • Високі стелі
      • Санвузол

      Комунікації:
      Водопостачання, каналізація;
      Електроенергія;
      Централізоване опалення.

      Стан:
      Без ремонту


      Ідеально підійде під майстерню, офіс, приватну медичну практику та ін.

      Відео - https://youtu.be/ko810h8NId8

      Вартість продажу – 90 000 USD

      Менеджер об'єкту -
      Данкін Олександр
      +38 067 33 20 911 (Viber/Telegram/WhatsApp)

      Надіслати скаргу

      Закрити
      Поскаржитися на об'єкт «Волі, 15 (г. Луцк)»
      Ваш коментар:(Необов'язково)
      Ваша скарга буде надіслана ріелтору, що розмістив об'єкт, а також адміністрації сайту АФНУ.
      Ваше ім'я:
      (Обов'язково)
      Ваш e-mail для відповіді:
      (Обов'язково)

      Вам также могут подойти

      Грушевського, 24 (г. Луцк) - Продається офіс, 88000 $ - АФНУ

      Оновлено: 1 серпня

      Розміщено: 15 січня

      Продається офіс

      площа 72, поверх 1/5

      г. Луцк, Грушевського, 24

      88000 $ без комісії

      Данкін Олександр Олександрович

      керівник відділу комерційної нерухомості (Компанія "Атланта Нерухомість")

      Продаж комерційного приміщення в р-н Залізничного вокзалу!

      Розташування: м. Луцьк, просп. Президента Грушевського, 24а. Розвинена інфраструктура, поруч: аптека, заклади харчування, магазин побутової хімії, продуктовий магазин, зупинки громадського транспорту, пошта. Активний…

      Детальніше

      Грушевського, 24 (г. Луцк) - Продається офіс, 88000 $ - АФНУ

      Оновлено: 1 серпня

      Розміщено: 15 січня

      Продається офіс

      площа 72, поверх 1/5

      г. Луцк, Грушевського, 24

      88000 $ без комісії

      Данкін Олександр Олександрович

      керівник відділу комерційної нерухомості (Компанія "Атланта Нерухомість")

      Продаж комерційного приміщення в р-н Залізничного вокзалу!

      Розташування: м. Луцьк, просп. Президента Грушевського, 24а. Розвинена інфраструктура, поруч: аптека, заклади харчування, магазин побутової хімії, продуктовий магазин, зупинки громадського транспорту, пошта. Активний…

      Детальніше

      Коментарі