Вхід на сайт

Ел. пошта:
Пароль:

Реєстрація на сайті

Призвіще: Область:
Ім'я: Населений пункт:
    По батькові: Номер телефону:
    Ел. пошта: Компанія:
      Пароль: Посада:
      Повторіть пароль: Рік початку роботи:
      Фото:
      З правилами розміщення об'єктів погоджуюсь

      Забули пароль?

      Вкажіть ел. пошту — ми надішлемо Вам новий пароль для входу
      Ел. пошта:

      Проблема на сайті

      Закрити
      Ваш e-mail:
      (необов'язково)
      Розкажіть нам, що сталось
      112_1.jpg

      ул. Артема — Продається квартира

      (г. Полтава, Киевский район)

      105000 $

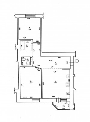
      Загальна площа: 73.7 кв.м

      Жила площа: 30.5 кв.м

      Площа кухні: 21.2 кв.м

      Кімнат: 2

      Поверх: 5

      К-ть поверхів: 9

      Продаж апартаментів з двома спальнями в будинку бізнес класу, в Центрі Полтави, р-н вул. Симона Петлюри (стара назва- Артема), 3, поряд з зупинкою «ОЦЕВУМ»
      Характеристика квартири:
      - загальна площа – 73,7 кв.м;
      - житлова площа – 30,5 кв.м;
      - кухня- студія – 21,2 кв.м;
      - поверх – 5/9 пов. цегляного будинку;
      - висота стель Н= 2,65 м;
      Комунікації:
      - централізовані;
      - опалення та підігрів води – двоконтурний котел,
      - лічильники: світло, газ, холодне водопостачання
      Стан:
      - вікна м/п
      - євроремонт
      - кондиціонер
      - повна комплектація меблями та побутовою технікою

      Квартира здана в оренду за 25000 грн/міс + комунальні послуги (можливо переоформлення договору оренди на нового власника чи звільнення квартири)

      Надіслати скаргу

      Закрити
      Поскаржитися на об'єкт «ул. Артема (г. Полтава, Киевский район)»
      Ваш коментар:(Необов'язково)
      Ваша скарга буде надіслана ріелтору, що розмістив об'єкт, а також адміністрації сайту АФНУ.
      Ваше ім'я:
      (Обов'язково)
      Ваш e-mail для відповіді:
      (Обов'язково)

      Вам также могут подойти

      ул. Ватутина (г. Полтава, Киевский район) - Продається квартира, 88000 $ - АФНУ

      Оновлено: 7 листопада 2025

      Розміщено: 9 вересня 2021

      Продається квартира

      3 кімн., площа 70/42/11, поверх 2/7

      г. Полтава, ул. Ватутина

      88000 $

      Остапченко Александр Степанович

      соучредитель (Агентство недвижимости "Альянс риэлти" Полтава)

      Продаж 3 кімнатної квартири (індивідуальний проект) в Центрі Полтави, поряд з школою №38, по вул. Ватутіна, 9/68
      Характеристика квартири:
      - Загальна площа - 70,1 кв.м;
      - Житлова площа – 42,6…

      Детальніше

      ул. Гагарина (г. Полтава, Октябрьский район) - Продається квартира, 90000 $ - АФНУ

      Оновлено: 14 листопада 2025

      Розміщено: 31 березня 2021

      Продається квартира

      2 кімн., площа 56/30/10, поверх 4/4

      г. Полтава, ул. Гагарина

      90000 $

      Остапченко Александр Степанович

      соучредитель (Агентство недвижимости "Альянс риэлти" Полтава)

      Продажа 2-х комнатной квартиры в Центре Полтавы в р-не Памятного знака героям Небесной сотни (бывшего памятника Ленина) по ул. Гагарина ремонт 2020 г., первая сдача, новая мебель и бытовая техника…

      Детальніше

      ул. Ватутина (г. Полтава, Киевский район) - Продається квартира, 88000 $ - АФНУ

      Оновлено: 7 листопада 2025

      Розміщено: 9 вересня 2021

      Продається квартира

      3 кімн., площа 70/42/11, поверх 2/7

      г. Полтава, ул. Ватутина

      88000 $

      Остапченко Александр Степанович

      соучредитель (Агентство недвижимости "Альянс риэлти" Полтава)

      Продаж 3 кімнатної квартири (індивідуальний проект) в Центрі Полтави, поряд з школою №38, по вул. Ватутіна, 9/68
      Характеристика квартири:
      - Загальна площа - 70,1 кв.м;
      - Житлова площа – 42,6…

      Детальніше

      Коментарі