Вхід на сайт

Ел. пошта:
Пароль:

Реєстрація на сайті

Призвіще: Область:
Ім'я: Населений пункт:
    По батькові: Номер телефону:
    Ел. пошта: Компанія:
      Пароль: Посада:
      Повторіть пароль: Рік початку роботи:
      Фото:
      З правилами розміщення об'єктів погоджуюсь

      Забули пароль?

      Вкажіть ел. пошту — ми надішлемо Вам новий пароль для входу
      Ел. пошта:

      Проблема на сайті

      Закрити
      Ваш e-mail:
      (необов'язково)
      Розкажіть нам, що сталось
      112_1.jpg

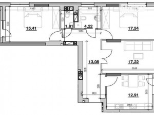
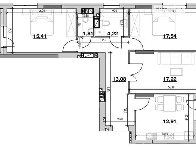
      Гніздовського, 75В — Продається квартира

      (г. Львов, Железнодорожный район)

      100000 $

      Загальна площа: 95 кв.м

      Жила площа: 51 кв.м

      Площа кухні: 13 кв.м

      Кімнат: 3

      Поверх: 11

      К-ть поверхів: 12

      Продаж 3-кв.вул. Гніздовського 75В,11/12, заг.пл. 95 кв.м. будинок зданий, є право власності на руках. Опалення автономне, будинкове, під'єднано всі комунікації, 2-санвузла, 2 лоджії, готова квартира до ремонту, великі панорамні вікна, сусідні будинки далеко, південна сторона. Окремо є можливість придбати комору (4м) з панорамним вікном. Ціна 106000$ 0984511000 Роман

      Надіслати скаргу

      Закрити
      Поскаржитися на об'єкт «Гніздовського, 75В (г. Львов, Железнодорожный район)»
      Ваш коментар:(Необов'язково)
      Ваша скарга буде надіслана ріелтору, що розмістив об'єкт, а також адміністрації сайту АФНУ.
      Ваше ім'я:
      (Обов'язково)
      Ваш e-mail для відповіді:
      (Обов'язково)

      Коментарі