Вхід на сайт

Ел. пошта:
Пароль:

Реєстрація на сайті

Призвіще: Область:
Ім'я: Населений пункт:
    По батькові: Номер телефону:
    Ел. пошта: Компанія:
      Пароль: Посада:
      Повторіть пароль: Рік початку роботи:
      Фото:
      З правилами розміщення об'єктів погоджуюсь

      Забули пароль?

      Вкажіть ел. пошту — ми надішлемо Вам новий пароль для входу
      Ел. пошта:

      Проблема на сайті

      Закрити
      Ваш e-mail:
      (необов'язково)
      Розкажіть нам, що сталось
      112_1.jpg

      Церковна — Здається офіс

      (г. Кривой Рог, Центрально-Городской район)

      150 грн. за кв.м.

      Загальна площа: 70 кв.м

      Кімнат: 3

      Поверх: 4

      К-ть поверхів: 4

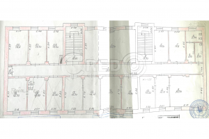
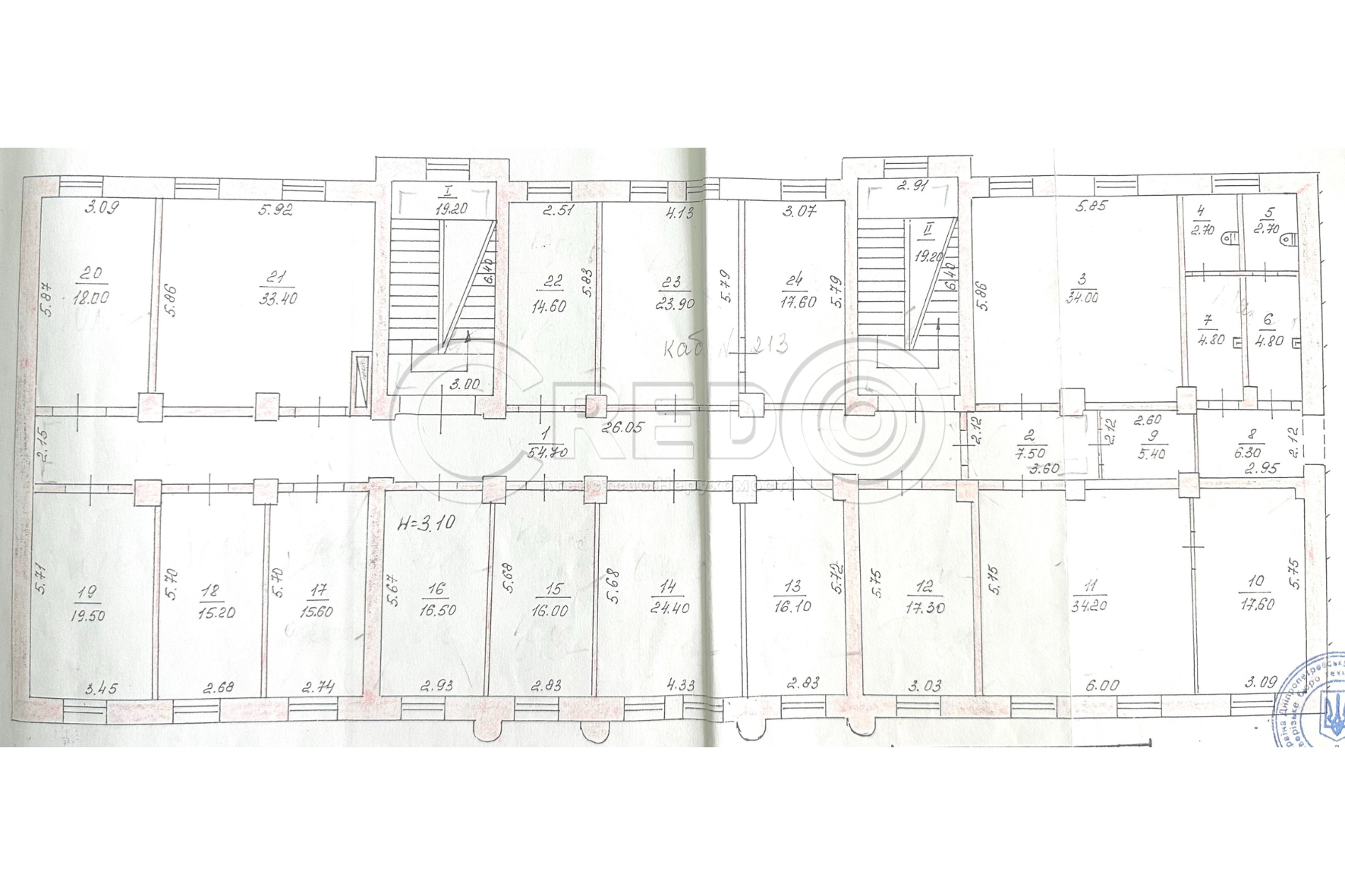
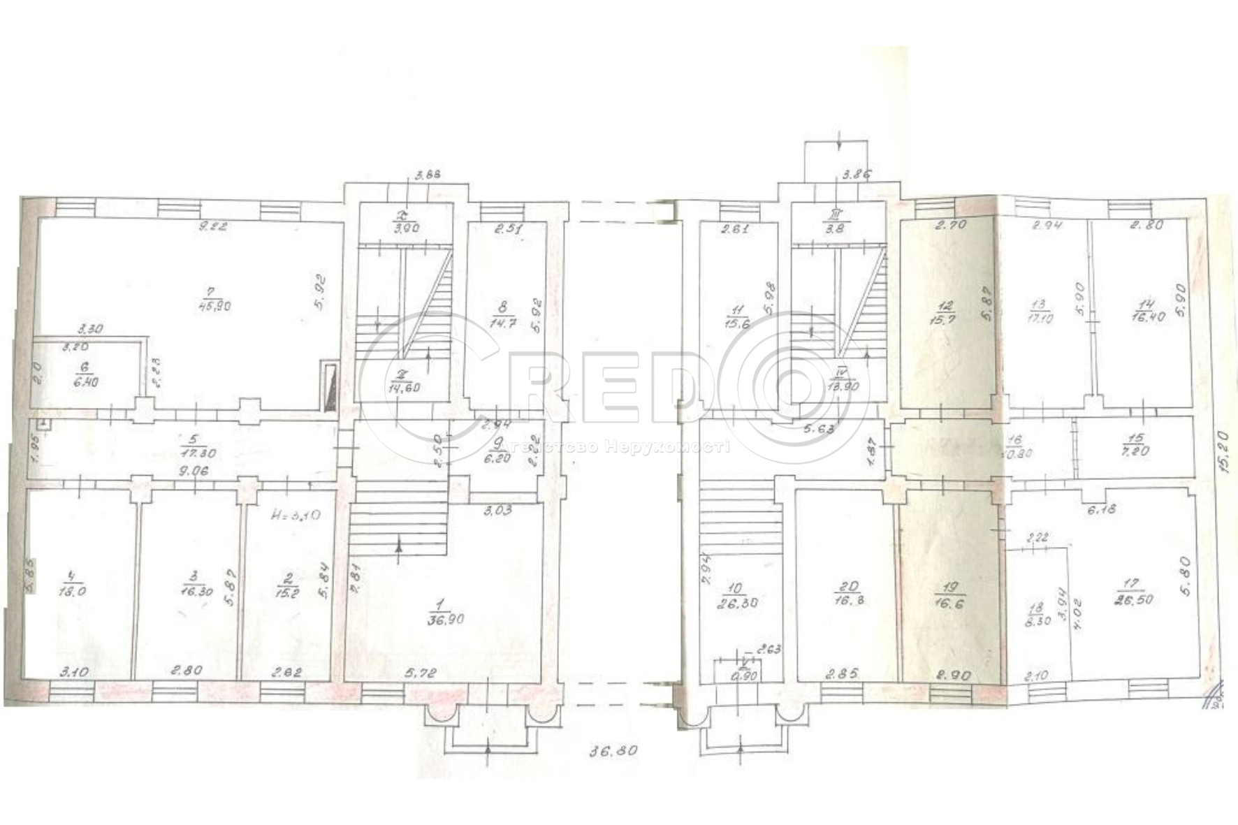
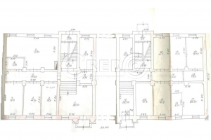
      Пропонуємо в оренду офісні приміщення в окремій 4-поверховій адміністративній будівлі з гарним видом на парк

      Про об'єкт:
      - кабінети різною площею від 15кв.м. до 70кв.м.,
      - висота стелі - 3.13м.

      Особливості:
      - кабінети в гарному стані, на підлозі лінолеум, стіни пофарбовані, вікна м/пл.
      - парковка біля будівлі та в дворі

      Комунікації:
      - світло, вода, каналізація, кондиціонер, опалення - автономне, сан.вузол на кожному поверсі, охорона, парковка.

      Локація:
      Дуже зручне розташування, поряд зупинка, великий пішохідний та автомобільний трафік. Історична частина центру міста, вул. Церковна.

      Оренда 4-го поверху 150грн/м.кв.
      Оренда 3-го поверху 150грн/м.кв.
      Оренда 2-го поверху 200грн/м.кв.
      Оренда 1-го поверху 250грн/м.кв.

      При підписані договору плата за перший місяць та гарантійний платіж в розмірі місячної плати.

      За будь-якими питаннями за цією або схожими пропозиціями звертайтесь за номером телефону, де вам відповість наш ріелтор Надія 098 985 09 08.

      З повагою, команда Credo!

      Надіслати скаргу

      Закрити
      Поскаржитися на об'єкт «Церковна (г. Кривой Рог, Центрально-Городской район)»
      Ваш коментар:(Необов'язково)
      Ваша скарга буде надіслана ріелтору, що розмістив об'єкт, а також адміністрації сайту АФНУ.
      Ваше ім'я:
      (Обов'язково)
      Ваш e-mail для відповіді:
      (Обов'язково)

      Вам также могут подойти

      пл. Дзержинского (г. Кривой Рог, Саксаганский район) - Здається офіс, 100 грн. за кв.м. - АФНУ

      Оновлено: 12 березня

      Розміщено: 13 березня 2020

      Здається офіс

      1 кімн., площа 100, поверх 2/3

      г. Кривой Рог, пл. Дзержинского

      100 грн. за кв.м.

      Літвинова Ірина Вікторівна

      Оренда офісів на "Дзержинці".
      пл. Шахтарської Слави
      Саксаганський район

      Про об’єкт:
      - район Дзержинка
      -окремо розташована будівля
      - офіси на 2-му та 3-му поверхах

      Планування об’єкту:
      - загальна площа від…

      Детальніше

      ул. 22-го Партсъезда (г. Кривой Рог, Дзержинский район) - Здається офіс, 140 грн. за кв.м. - АФНУ

      Оновлено: 3 квітня

      Розміщено: 20 січня 2023

      Здається офіс

      4 кімн., площа 100, поверх 5/5

      г. Кривой Рог, ул. 22-го Партсъезда

      140 грн. за кв.м.

      Літвинова Ірина Вікторівна

      Оренда офісного приміщення
      - Металургійний район
      - вул. В. Матусевича

      Про об’єкт:
      - приміщення розташоване на 5-му поверсі 5-ти поверхової офісної будівлі
      - біля приміщення парковка

      Планування об’єкту:
      - загальна…

      Детальніше

      Соборності (г. Кривой Рог, Дзержинский район) - Здається офіс, 150 грн. за кв.м. - АФНУ

      Оновлено: 31 березня

      Розміщено: 11 липня 2023

      Здається офіс

      1 кімн., площа 65, поверх 2/3

      г. Кривой Рог, Соборності

      150 грн. за кв.м.

      Літвинова Ірина Вікторівна

      Пропонуються в оренду офісні приміщення в окремій три поверховій будівлі вул. Соборності.

      Про приміщення:
      - кабінети різною площею від 15кв.м. до 65кв.м
      - висота стелі - 3.20м.

      Особливості:
      - кабінети…

      Детальніше

      Коментарі