Вхід на сайт

Ел. пошта:
Пароль:

Реєстрація на сайті

Призвіще: Область:
Ім'я: Населений пункт:
    По батькові: Номер телефону:
    Ел. пошта: Компанія:
      Пароль: Посада:
      Повторіть пароль: Рік початку роботи:
      Фото:
      З правилами розміщення об'єктів погоджуюсь

      Забули пароль?

      Вкажіть ел. пошту — ми надішлемо Вам новий пароль для входу
      Ел. пошта:

      Проблема на сайті

      Закрити
      Ваш e-mail:
      (необов'язково)
      Розкажіть нам, що сталось
      112_1.jpg

      без комісії Полтавський Шлях вулиця, 184 — Продається квартира в новобудові

      (г. Харьков, Ленинский район)

      31000 $

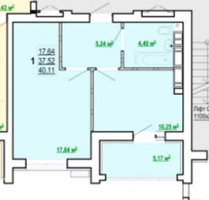
      Загальна площа: 40 кв.м

      Жила площа: 17 кв.м

      Площа кухні: 10 кв.м

      Кімнат: 1

      Поверх: 7

      К-ть поверхів: 9

      Без комісії!
      Продам 1-квартиру в ЖК Казка (Сказка), Полтавський шлях.
      Будинок 8 секція 2. Будинок зданий в грудні 2021 року.

      До ст метро Холодна гора 15 хв пішки.

      Код об'єкта SF-2-178-019

      Комплекс розташований біля станції метро Холодна гора. Забудовник Житлобуд-1.

      Поруч вся необхідна інфраструктура: метро, супермаркети Клас та Рост, ринок Казка, школи, дитячі садки, зупинка громадського транспорту.

      Забудовник Житлобуд-1.

      Будинок 8 секція 2. Здан в грудні 2021р.
      Переуступка.

      7-й поверх 9-ти поверхового будинку.

      Загальна площа: 40,11 кв.м, окрема кімната - 17,6 кв.м, кухня – 10,25 кв.м із лоджією 5,17 кв.м.
      Квартира у будівельному стані.

      Багаторівневий паркінг, гостьова парковка.

      Відкритий двір, дитячий майданчик, в одному з будинків комплексу буде розміщено дитячий садок.

      Вартість - $31 тис.

      Надіслати скаргу

      Закрити
      Поскаржитися на об'єкт «Полтавський Шлях вулиця, 184 (г. Харьков, Ленинский район)»
      Ваш коментар:(Необов'язково)
      Ваша скарга буде надіслана ріелтору, що розмістив об'єкт, а також адміністрації сайту АФНУ.
      Ваше ім'я:
      (Обов'язково)
      Ваш e-mail для відповіді:
      (Обов'язково)

      Вам также могут подойти

      семінарська, 46 (г. Харьков, Ленинский район) - Продається квартира, 25900 $ - АФНУ

      Оновлено: 11 липня

      Розміщено: 9 вересня 2024

      Продається квартира

      1 кімн., площа 31/16/8, поверх 2/5

      г. Харьков, семінарська, 46

      25900 $

      Авраменко Елена Александровна

      (Агенція нерухомості AvramenKo) , (Агенція нерухомості AvramenKo)

      Продам 1-кімнатну квартиру в ЖК Семінарський, вул. Семінарська 46, поряд зі станцією метро Холодна Гора.

      Код обєкта SF-2-779-101

      Комплекс знаходиться біля метро Холодна Гора. Поряд вся необхідна інфраструктура: метро, супермаркети…

      Детальніше

      ул. Валдайская, 26 (г. Харьков, Червонозаводский район) - Продається квартира, 29500 $ - АФНУ

      Оновлено: 11 липня

      Розміщено: 17 січня 2022

      Продається квартира

      3 кімн., площа 61/43/5, поверх 4/9

      г. Харьков, ул. Валдайская, 26

      29500 $

      Авраменко Елена Александровна

      (Агенція нерухомості AvramenKo) , (Агенція нерухомості AvramenKo)

      Продам 3-кім. квартиру на Одеській, вул. Валдайська, 26.

      Код об'єкта SF-2-135-706

      Тихий спальний район, до станції метро ім. Гагаріна – 40 хвилин на транспорті.

      4 поверх 9-поверхового цегляного будинку.
      Загальна…

      Детальніше

      пр. Московский, 158 (г. Харьков, Фрунзенский район) - Продається квартира в новобудові, 26900 $ - АФНУ

      Оновлено: 11 липня

      Розміщено: 18 січня 2022

      Продається квартира в новобудові

      2 кімн., площа 61/33.49/11.72, поверх 3/14

      г. Харьков, пр. Московский, 158

      26900 $

      Авраменко Елена Александровна

      (Агенція нерухомості AvramenKo) , (Агенція нерухомості AvramenKo)

      Продам 2-кімнатну квартиру у житловому комплексі комфорт-класу «Пролісок». До метро "Палац спорту" 5 хвилин пішки.

      Код об'єкта: SF-2-081-814

      Житловий комплекс розташований в районі Нові Дома біля метро та зупинок транспорту.…

      Детальніше

      Коментарі