Вхід на сайт

Ел. пошта:
Пароль:

Реєстрація на сайті

Призвіще: Область:
Ім'я: Населений пункт:
    По батькові: Номер телефону:
    Ел. пошта: Компанія:
      Пароль: Посада:
      Повторіть пароль: Рік початку роботи:
      Фото:
      З правилами розміщення об'єктів погоджуюсь

      Забули пароль?

      Вкажіть ел. пошту — ми надішлемо Вам новий пароль для входу
      Ел. пошта:

      Проблема на сайті

      Закрити
      Ваш e-mail:
      (необов'язково)
      Розкажіть нам, що сталось
      112_1.jpg

      Соборності (Жовтнева) вулиця — Продається квартира

      (г. Полтава, Октябрьский район)

      150000 $

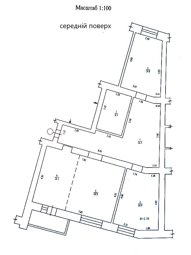
      Загальна площа: 101.5 кв.м

      Жила площа: 51.6 кв.м

      Площа кухні: 34.2 кв.м

      Кімнат: 3

      Поверх: 6

      К-ть поверхів: 9

      Продажа 3 комнатной квартиры (апартаменты с двумя спальнями) в Центре Полтавы по ул. Соборности (р-н Корпусного парка)

      Характеристика квартиры:
      - Общая площадь – 101,5 кв.м;
      - Жилая площадь - 51,6 кв.м;
      - кухня-студия- 34,2 кв.м;
      - комната- 16,9 кв.м;
      - комната- 14,8 кв.м
      - Этаж - средний
      - Высота потолков Н= 2,70 м;
      Коммуникации:
      - отопление и горячее водоснабжение- двухконтурный котел,
      - счетчики на свет, газ, воду.

      Состояние:
      - окна м/п
      - кондиционер
      - ремонту 5-7 лет

      Стоимость: $150 000
      Дополнительно оплачиваются услуги АН

      Надіслати скаргу

      Закрити
      Поскаржитися на об'єкт «Соборності (Жовтнева) вулиця (г. Полтава, Октябрьский район)»
      Ваш коментар:(Необов'язково)
      Ваша скарга буде надіслана ріелтору, що розмістив об'єкт, а також адміністрації сайту АФНУ.
      Ваше ім'я:
      (Обов'язково)
      Ваш e-mail для відповіді:
      (Обов'язково)

      Вам также могут подойти

      Соборності (г. Полтава, Октябрьский район) - Продається квартира, 150000 $ - АФНУ

      Оновлено: 6 квітня

      Розміщено: 14 листопада 2025

      Продається квартира

      3 кімн., площа 78.2/54/11, поверх 2/2

      г. Полтава, Соборності

      150000 $

      Остапченко Александр Степанович

      соучредитель (Агентство недвижимости "Альянс риэлти" Полтава)

      Продаж перепланованої трикімнатної квартири (апартаменти з двома спальнями) в історичному будинку бізнес класу в самому Центрі Полтави (поряд з Корпусним парком)

      Характеристика квартири:
      - загальна площа 78,2 кв.м;
      - кухня-…

      Детальніше

      Соборності (г. Полтава, Октябрьский район) - Продається квартира, 150000 $ - АФНУ

      Оновлено: 6 квітня

      Розміщено: 14 листопада 2025

      Продається квартира

      3 кімн., площа 78.2/54/11, поверх 2/2

      г. Полтава, Соборності

      150000 $

      Остапченко Александр Степанович

      соучредитель (Агентство недвижимости "Альянс риэлти" Полтава)

      Продаж перепланованої трикімнатної квартири (апартаменти з двома спальнями) в історичному будинку бізнес класу в самому Центрі Полтави (поряд з Корпусним парком)

      Характеристика квартири:
      - загальна площа 78,2 кв.м;
      - кухня-…

      Детальніше

      Коментарі