Вхід на сайт

Ел. пошта:
Пароль:

Реєстрація на сайті

Призвіще: Область:
Ім'я: Населений пункт:
    По батькові: Номер телефону:
    Ел. пошта: Компанія:
      Пароль: Посада:
      Повторіть пароль: Рік початку роботи:
      Фото:
      З правилами розміщення об'єктів погоджуюсь

      Забули пароль?

      Вкажіть ел. пошту — ми надішлемо Вам новий пароль для входу
      Ел. пошта:

      Проблема на сайті

      Закрити
      Ваш e-mail:
      (необов'язково)
      Розкажіть нам, що сталось
      112_1.jpg

      Сокольниковская, 28 — Продається квартира в новобудові

      (г. Харьков, Киевский район)

      28500 $

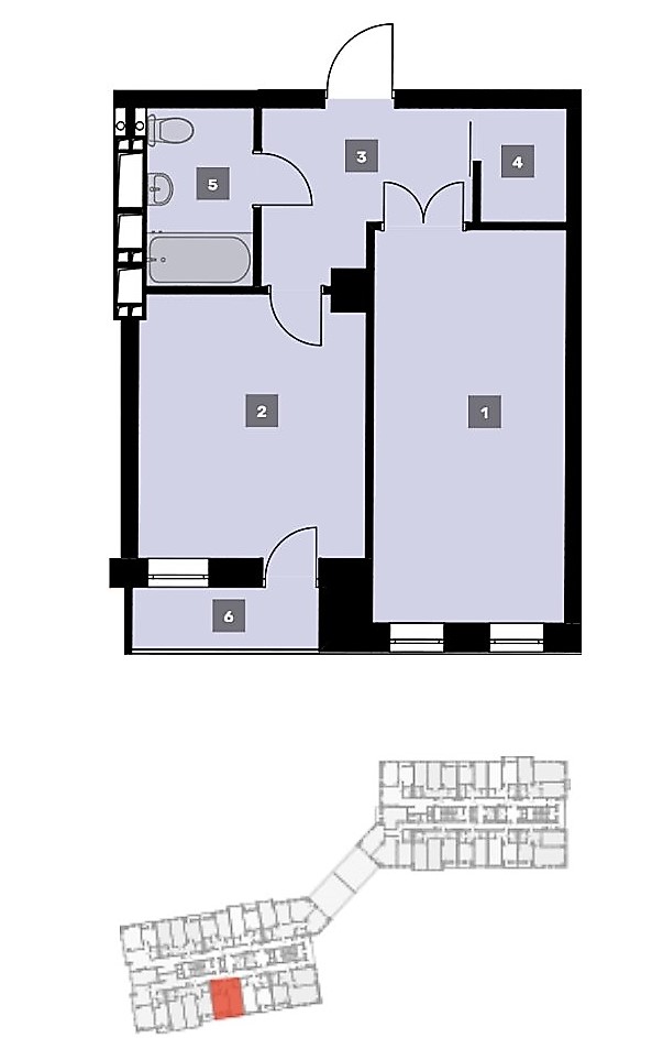
      Загальна площа: 40 кв.м

      Жила площа: 15 кв.м

      Площа кухні: 12 кв.м

      Кімнат: 1

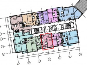
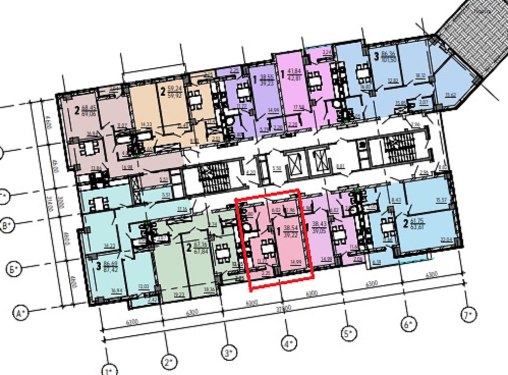
      Поверх: 8

      К-ть поверхів: 12

      Продам 1-кімнатну квартиру в новому житловому комплексі преміум-класу "Bauhaus" у Сокільниках.

      Код об'єкту - SF-2-372-126

      Будинок розташований в районі Сокільники. Поруч Лісопарк, парк Горького, фітнес-клуб "Тетра", авторська школа та дитячий садок Бойка, 10 хвилин від центру міста, поряд зупинки наземного транспорту.

      Житловий комплекс складається з двох корпусів "Мюнхен" і "Гамбург", зі своєю інфраструктурою: супермаркет, кафе, салон краси, автомийка, дитяче міні-містечко, мультифункціональний спортивний майданчик, індивідуальний дворівневий паркінг, гостьовий паркінг, стилобат, консьєрж сервіс.

      Забудовник "Житлобуд-3", який вже збудував сусідній житловий комплекс Felicita.

      Секція "Гамбурґ".
      Продаж по переуступці.

      8-й поверх 12-поверхового монолітно-каркасного будинку. Стіни з керамоблоку із утепленням мінеральною ватою.

      Загальна площа 40 кв.м: окрема кухня 12 кв.м з лоджією 2,25 кв.м, спальня 15 кв.м, санвузол 3,8 кв.м, просторий передпокій 6 кв.м, вбиральня 2 кв.м.
      Вид з вікон у бік Харківського шосе (продовження вулиці Сумської).

      Квартира у будiвельному станi.
      Вікна Rehau, двері, малошумні каналізаційні труби.
      Система "Розумний дім" - безпека та економічність.
      Встановлено систему фільтрації води.

      Вартість – $28,5 тис. + послуги АН

      Надіслати скаргу

      Закрити
      Поскаржитися на об'єкт «Сокольниковская, 28 (г. Харьков, Киевский район)»
      Ваш коментар:(Необов'язково)
      Ваша скарга буде надіслана ріелтору, що розмістив об'єкт, а також адміністрації сайту АФНУ.
      Ваше ім'я:
      (Обов'язково)
      Ваш e-mail для відповіді:
      (Обов'язково)

      Вам также могут подойти

      ул. Валдайская, 26 (г. Харьков, Червонозаводский район) - Продається квартира, 29500 $ - АФНУ

      Оновлено: 11 липня

      Розміщено: 17 січня 2022

      Продається квартира

      3 кімн., площа 61/43/5, поверх 4/9

      г. Харьков, ул. Валдайская, 26

      29500 $

      Авраменко Елена Александровна

      (Агенція нерухомості AvramenKo) , (Агенція нерухомості AvramenKo)

      Продам 3-кім. квартиру на Одеській, вул. Валдайська, 26.

      Код об'єкта SF-2-135-706

      Тихий спальний район, до станції метро ім. Гагаріна – 40 хвилин на транспорті.

      4 поверх 9-поверхового цегляного будинку.
      Загальна…

      Детальніше

      пр. Московский, 158 (г. Харьков, Фрунзенский район) - Продається квартира в новобудові, 26900 $ - АФНУ

      Оновлено: 11 липня

      Розміщено: 18 січня 2022

      Продається квартира в новобудові

      2 кімн., площа 61/33.49/11.72, поверх 3/14

      г. Харьков, пр. Московский, 158

      26900 $

      Авраменко Елена Александровна

      (Агенція нерухомості AvramenKo) , (Агенція нерухомості AvramenKo)

      Продам 2-кімнатну квартиру у житловому комплексі комфорт-класу «Пролісок». До метро "Палац спорту" 5 хвилин пішки.

      Код об'єкта: SF-2-081-814

      Житловий комплекс розташований в районі Нові Дома біля метро та зупинок транспорту.…

      Детальніше

      Полтавський Шлях вулиця, 184 (г. Харьков, Ленинский район) - Продається квартира в новобудові, 31000 $ - АФНУ

      Оновлено: 11 липня

      Розміщено: 20 лютого 2023

      Продається квартира в новобудові

      1 кімн., площа 40/17/10, поверх 7/9

      г. Харьков, Полтавський Шлях вулиця, 184

      31000 $ без комісії

      Авраменко Елена Александровна

      (Агенція нерухомості AvramenKo) , (Агенція нерухомості AvramenKo)

      Без комісії!
      Продам 1-квартиру в ЖК Казка (Сказка), Полтавський шлях.
      Будинок 8 секція 2. Будинок зданий в грудні 2021 року.

      До ст метро Холодна гора 15 хв пішки.

      Код об'єкта…

      Детальніше

      Коментарі