Вхід на сайт

Ел. пошта:
Пароль:

Реєстрація на сайті

Призвіще: Область:
Ім'я: Населений пункт:
    По батькові: Номер телефону:
    Ел. пошта: Компанія:
      Пароль: Посада:
      Повторіть пароль: Рік початку роботи:
      Фото:
      З правилами розміщення об'єктів погоджуюсь

      Забули пароль?

      Вкажіть ел. пошту — ми надішлемо Вам новий пароль для входу
      Ел. пошта:

      Проблема на сайті

      Закрити
      Ваш e-mail:
      (необов'язково)
      Розкажіть нам, що сталось
      112_1.jpg

      ул. Буровиков — Здається склад

      (г. Полтава, Киевский район)

      55 грн. за кв.м.

      Загальна площа: 65 кв.м

      К-ть поверхів: 1

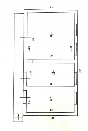
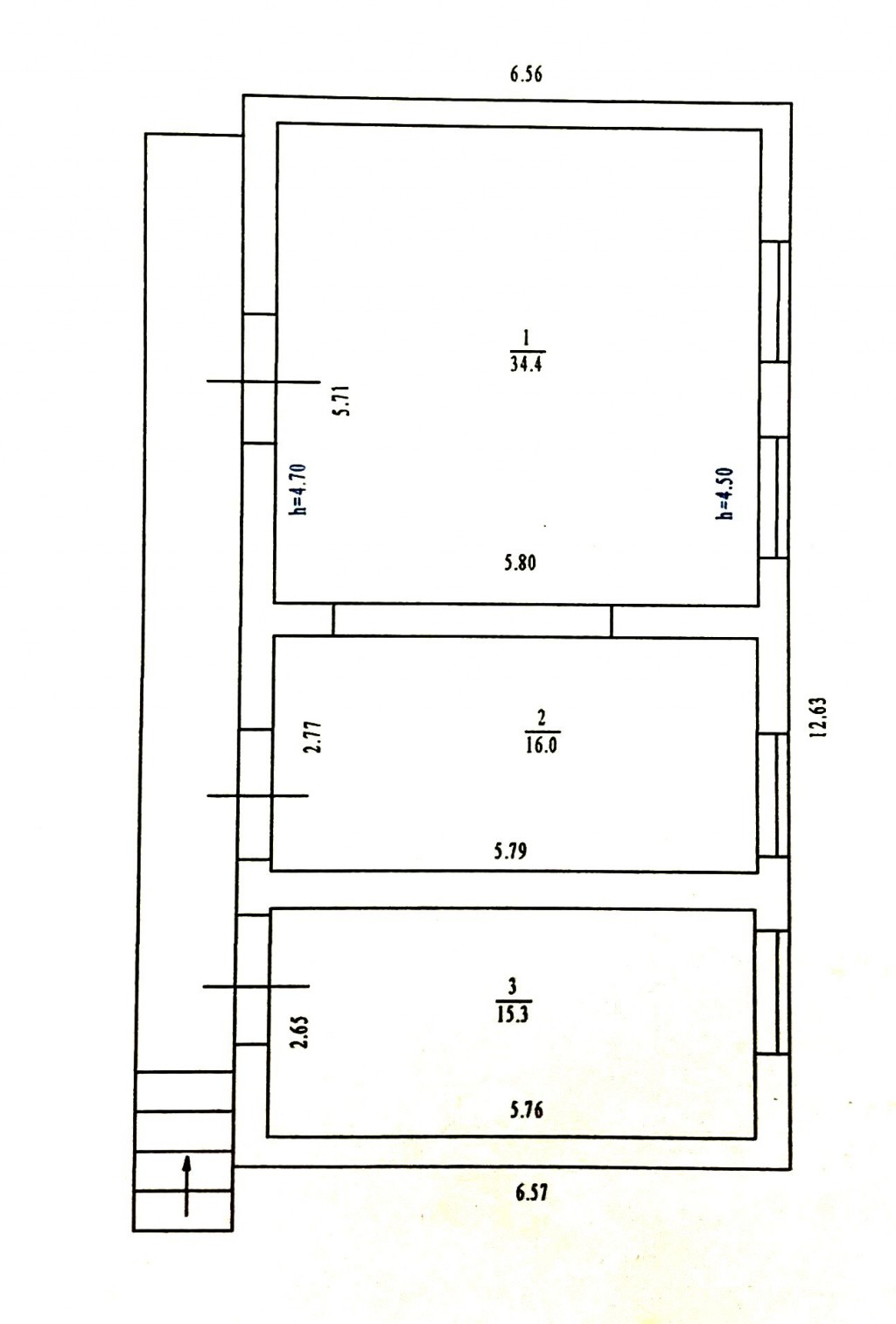
      Аренда отдельно стоящего складского помещения с рампой площадью 65,7м2 расположенного на охраняемой производственной базе в районе промышленной зоны Супруновки железнодорожной, по ул. Буровиков

      Характеристика помещения:
      -склад площадью 34,4 м2;
      -склад площадью 16 м2;
      -склад площадью 15,3м2;
      -высота склада Н= 4,7м.;
      -на производственной базе своя подстанция 600 кВт, есть площадка с ж/д веткой и козловым краном, отапливаемые офисные и бытовые помещения;
      -есть резервуары для хранения ГСМ и сыпучих материалов;
      -охрана, видео наблюдение
      Стоимость: 55 грн/м2 с НДС
      В наличии есть и другие производственные и складские помещения общей площадью до 5000 м2

      Надіслати скаргу

      Закрити
      Поскаржитися на об'єкт «ул. Буровиков (г. Полтава, Киевский район)»
      Ваш коментар:(Необов'язково)
      Ваша скарга буде надіслана ріелтору, що розмістив об'єкт, а також адміністрації сайту АФНУ.
      Ваше ім'я:
      (Обов'язково)
      Ваш e-mail для відповіді:
      (Обов'язково)

      Коментарі