Вхід на сайт

Ел. пошта:
Пароль:

Реєстрація на сайті

Призвіще: Область:
Ім'я: Населений пункт:
    По батькові: Номер телефону:
    Ел. пошта: Компанія:
      Пароль: Посада:
      Повторіть пароль: Рік початку роботи:
      Фото:
      З правилами розміщення об'єктів погоджуюсь

      Забули пароль?

      Вкажіть ел. пошту — ми надішлемо Вам новий пароль для входу
      Ел. пошта:

      Проблема на сайті

      Закрити
      Ваш e-mail:
      (необов'язково)
      Розкажіть нам, що сталось
      112_1.jpg

      Будівельників — Продається таунхаус

      (г. Белая Церковь, Війсьбуд)

      82000 $

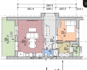
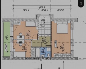
      Загальна площа: 105 кв.м

      Кімнат: 3

      К-ть поверхів: 2

      Продаж 2 х поверхових дуплексів в м. Біла Церква, район дендропарку "Олександрія".
      Будували з високоякісних матеріалів.А саме: керамічний блок 380 мм; рядова повнотіла цегла М-100; фундамент стрічково-монолітний та монолітна плита; фальцева покрівля графітового кольору "Словакія" з утепленням базальтовою ватою товщиною 250 мм; мінеральна вата (товщина 100 мм) з комбінованим оздобленням декоративною штукатуркою та клінкерною плиткою; панорамні металопластикові вікна, ламінований профіль (графіт) з енергозберігаючими склопакетами 40 мм;
      металеві двері; сходи – бетонні, монолітні; Комунікації централізовані- електроенергія 3 фази (380В) 5 кВт,
      газ, свердловина, каналізація. Будинок введено в експлуатацію, право власності на землю, технічний паспорт та право власності на будинок на руках!
      0674493140
      PRIME ESTATE

      Надіслати скаргу

      Закрити
      Поскаржитися на об'єкт «Будівельників (г. Белая Церковь, Війсьбуд)»
      Ваш коментар:(Необов'язково)
      Ваша скарга буде надіслана ріелтору, що розмістив об'єкт, а також адміністрації сайту АФНУ.
      Ваше ім'я:
      (Обов'язково)
      Ваш e-mail для відповіді:
      (Обов'язково)

      Коментарі