Вхід на сайт

Ел. пошта:
Пароль:

Реєстрація на сайті

Призвіще: Область:
Ім'я: Населений пункт:
    По батькові: Номер телефону:
    Ел. пошта: Компанія:
      Пароль: Посада:
      Повторіть пароль: Рік початку роботи:
      Фото:
      З правилами розміщення об'єктів погоджуюсь

      Забули пароль?

      Вкажіть ел. пошту — ми надішлемо Вам новий пароль для входу
      Ел. пошта:

      Проблема на сайті

      Закрити
      Ваш e-mail:
      (необов'язково)
      Розкажіть нам, що сталось
      112_1.jpg

      без комісії ул. Лисковская, 2/71 — Здається торгівельний майданчик

      (г. Киев, Деснянский район)

      19900 грн.

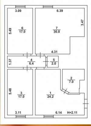
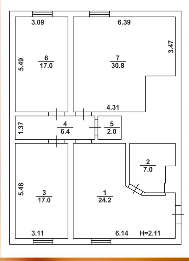
      Загальна площа: 105 кв.м

      Поверх: 17

      К-ть поверхів: 17

      ИЩЕТЕ В АРЕНДУ ПОМЕЩЕНИЕ ПОД:
      ✅ офис,
      ✅ интернет-магазин,
      ✅ шоурум?
      Тогда моё предложение на ул. Лисковская 2/71 вас точно заинтересует❗️

      Три просторных кабинета и кухня, в которой можно будет отвлечься на перерыв и выпить горячего кофе или чая ☕️

      В самом большом помещении есть кладовая, где можно разложить все по полочкам. Остальные можно подстроить под ваши конкретные потребности. Это могут быть, например, кабинеты для сотрудников, шоурум, склад.

      Решать вам, но это помещение станет практичным пространством в любом случае. А его географическое расположение будет находкой для офиса.

      Немного деталей:

      ✔️ Инфраструктура отличная - на перекрестке улиц, в центре Троещины.
      ✔️ 3 кабинета, кухня, коридор и смежная ванная комната с туалетом.
      ✔️ Помещение находится на 17 этаже с торца комплекса, что открывает чудесный вид на большую часть города.
      ✔️ Есть кондиционер, который сделает ваш летний сезон приятным.
      ✔️ Отопление

      Рабочее место должно быть одновременно комфортным и практичным. Взяв в аренду это помещение, вы получите пространство, где сможете работать и отдыхать одновременно

      Надіслати скаргу

      Закрити
      Поскаржитися на об'єкт «ул. Лисковская, 2/71 (г. Киев, Деснянский район)»
      Ваш коментар:(Необов'язково)
      Ваша скарга буде надіслана ріелтору, що розмістив об'єкт, а також адміністрації сайту АФНУ.
      Ваше ім'я:
      (Обов'язково)
      Ваш e-mail для відповіді:
      (Обов'язково)

      Коментарі