Вхід на сайт

Ел. пошта:
Пароль:

Реєстрація на сайті

Призвіще: Область:
Ім'я: Населений пункт:
    По батькові: Номер телефону:
    Ел. пошта: Компанія:
      Пароль: Посада:
      Повторіть пароль: Рік початку роботи:
      Фото:
      З правилами розміщення об'єктів погоджуюсь

      Забули пароль?

      Вкажіть ел. пошту — ми надішлемо Вам новий пароль для входу
      Ел. пошта:

      Проблема на сайті

      Закрити
      Ваш e-mail:
      (необов'язково)
      Розкажіть нам, що сталось
      112_1.jpg

      без комісії ул. Ватутина — Продається заклад громадського харчування

      (г. Кривой Рог, Жовтневый район)

      185000 $

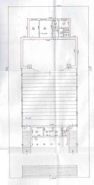
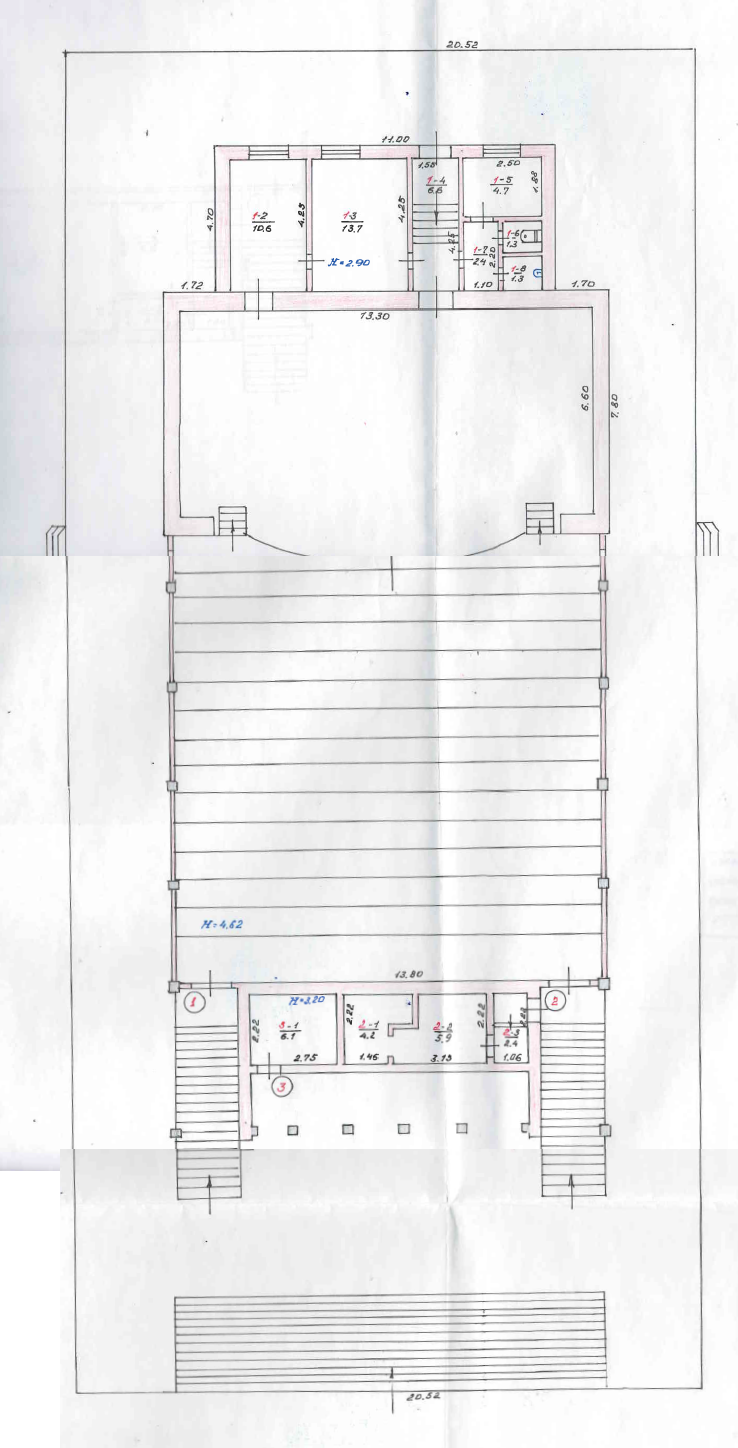
      Загальна площа: 571 кв.м

      К-ть поверхів: 1

      Специальное предложение от АН «Credo» продажа «Orbitaclub» Кривой Рог
      Если хотите начать свой бизнес и ищите помещение под ресторан или клуб, кинотеатр, то это предложение точно для Вас!
      «Orbitaclub» находиться в самом центре 44 квартала, в красивой парковой зоне, рядом находится спортивный комплекс «Молодость». В парке гуляют очень много людей, отличная транспортная развязка местности.
      «Orbitaclub» Основная площадь: 571,8кв.м., площадь помещения 473,5кв.м., высота потолка помещения 6,13м, площадь земли – 34 сотки, а также крытая летняя площадка с столиками и зоной для отдыха + сцена и профессиональное освящение.
      Проведенная вода и свет, канализация.
      Материал фундамента: бетон
      Цена продажи 185 тыс.$
      Телефон: 0676385054

      Надіслати скаргу

      Закрити
      Поскаржитися на об'єкт «ул. Ватутина (г. Кривой Рог, Жовтневый район)»
      Ваш коментар:(Необов'язково)
      Ваша скарга буде надіслана ріелтору, що розмістив об'єкт, а також адміністрації сайту АФНУ.
      Ваше ім'я:
      (Обов'язково)
      Ваш e-mail для відповіді:
      (Обов'язково)

      Вам также могут подойти

      ул. Революционная (г. Кривой Рог, Дзержинский район) - Продається заклад громадського харчування, 220000 $ - АФНУ

      Оновлено: 19 грудня 2025

      Розміщено: 10 травня 2023

      Продається заклад громадського харчування

      г. Кривой Рог, ул. Революционная

      220000 $

      Літвинова Ірина Вікторівна

      Продаж окремої будівлі район "Соцмісто"
      - Металургійний район
      - вул. Степана Тільги

      Про об’єкт:
      - окрема будівля
      - земельна ділянка - 390кв.м, кадастровий номер

      Планування об’єкту:
      - загальна площа: 386…

      Детальніше

      Коментарі