Вхід на сайт

Ел. пошта:
Пароль:

Реєстрація на сайті

Призвіще: Область:
Ім'я: Населений пункт:
    По батькові: Номер телефону:
    Ел. пошта: Компанія:
      Пароль: Посада:
      Повторіть пароль: Рік початку роботи:
      Фото:
      З правилами розміщення об'єктів погоджуюсь

      Забули пароль?

      Вкажіть ел. пошту — ми надішлемо Вам новий пароль для входу
      Ел. пошта:

      Проблема на сайті

      Закрити
      Ваш e-mail:
      (необов'язково)
      Розкажіть нам, що сталось
      112_1.jpg

      без комісії ул. Менжинского, 72-А — Продається будинок

      (г. Запорожье, Ленинский район)

      60000 $

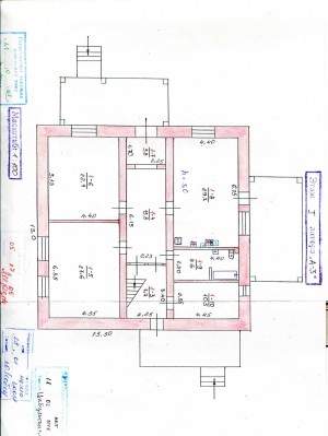
      Загальна площа: 300 кв.м

      Площа ділянки: 7 сот

      Кімнат: 10

      К-ть поверхів: 3

      Предлагается к продаже большой, светлый, теплый трехэтажный Дом на правом берегу по улице Менжинского, в тихом месте с хорошо развитой инфраструктурой, рядом остановки общественного транспорта, магазины, высотные дома, добропорядочные солидные соседи. Дом строился для себя с учётом всех энергосберегающих технологий и расположен на земельном участке площадью 6.5 соток. В постройке и отделке использовался только качественный экологически чистый материал. Объект имеет нестандартную планировку и само строение и стены выполнено из «Инкерманских» блоков и шлифованного белого кирпича, фундамент монолитный железобетонный, кровля шифер. Общая площадь дома 300 м/кв, жилая 233 м/кв, кухня 30 м/кв. На первом этаже расположены кухня-гостиная площадью 30 м/кв, две спальных комнаты 22+28 м/кв, санузел 10 м/кв, и гардеробная 10,5 м/кв. Также на первом этаже имеется веранда и второй выход на дальнюю часть дома. Второй этаж имеет три спальных комнаты площадью 28+22+26 м/кв, санузел 10 м/кв, кабинет 10 м/кв, большой парадный балкон и терраса. Третий этаж нежилой и используется как складские помещения. Окна металло-пластиковые, медная электропроводка, сигнализация. Также под домом имеется два больших просторных и высоких для габаритных автомобилей гаража. Имеется газовый двухконтурный котел и как альтернативный твердотопливный котел длительного горения, что позволяет существенно экономить на отоплении. Ваше новое жилье готово к заселению и ключи от дома покупатель получает на сделке. Торг минимальный.
      Изменить Добавлено: в 09:23, 16 сентября 2020

      Надіслати скаргу

      Закрити
      Поскаржитися на об'єкт «ул. Менжинского, 72-А (г. Запорожье, Ленинский район)»
      Ваш коментар:(Необов'язково)
      Ваша скарга буде надіслана ріелтору, що розмістив об'єкт, а також адміністрації сайту АФНУ.
      Ваше ім'я:
      (Обов'язково)
      Ваш e-mail для відповіді:
      (Обов'язково)

      Коментарі