Вхід на сайт

Ел. пошта:
Пароль:

Реєстрація на сайті

Призвіще: Область:
Ім'я: Населений пункт:
    По батькові: Номер телефону:
    Ел. пошта: Компанія:
      Пароль: Посада:
      Повторіть пароль: Рік початку роботи:
      Фото:
      З правилами розміщення об'єктів погоджуюсь

      Забули пароль?

      Вкажіть ел. пошту — ми надішлемо Вам новий пароль для входу
      Ел. пошта:

      Проблема на сайті

      Закрити
      Ваш e-mail:
      (необов'язково)
      Розкажіть нам, що сталось
      112_1.jpg

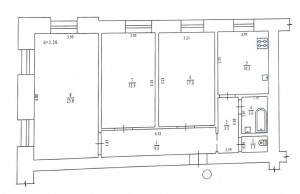
      ул. Октябрьская — Продається квартира

      (г. Полтава, Октябрьский район)

      70000 $

      Загальна площа: 84.5 кв.м

      Жила площа: 56.7 кв.м

      Площа кухні: 10.5 кв.м

      Кімнат: 3

      Поверх: 3

      К-ть поверхів: 3

      У Вас есть исключительная возможность приобрести жилье в историческом центре города Полтава на Круглой Площади (в наши дни Корпусный Сад(парк)).

      Продажа 3-х комнатной квартиры в Центре, в р-не Корпусного Парка по ул. Соборности, общей площадью 84,5 м.кв расположенную на 3 этаже, есть большой тамбур площадью 8 м.кв. на 3 квартиры.

      Характеристика квартиры:
      -общая площадь квартиры 84,5 м.кв.,
      -жилая – 56,7 м.кв,
      -кухня – 10,5 м.кв,
      - высота потолков Н= 3,0 м

      Отопление централизованное (счётчик на дом), подогрев воды - колонка, установлен счетчик на газ и воду.

      Надіслати скаргу

      Закрити
      Поскаржитися на об'єкт «ул. Октябрьская (г. Полтава, Октябрьский район)»
      Ваш коментар:(Необов'язково)
      Ваша скарга буде надіслана ріелтору, що розмістив об'єкт, а також адміністрації сайту АФНУ.
      Ваше ім'я:
      (Обов'язково)
      Ваш e-mail для відповіді:
      (Обов'язково)

      Вам также могут подойти

      бул. Боровиковского (г. Полтава, Октябрьский район) - Продається квартира, 65000 $ - АФНУ

      Оновлено: 1 вересня

      Розміщено: 25 лютого

      Продається квартира

      3 кімн., площа 65/39/9.5, поверх 6/9

      г. Полтава, бул. Боровиковского

      65000 $

      Остапченко Александр Степанович

      соучредитель (Агентство недвижимости "Альянс риэлти" Полтава)

      Стильна 3-кімнатна квартира в стилі Прованс на бульварі Боровиковського
      Локація: мікрорайон Огнівка (Сади-3) — один з найзеленіших та затишних районів Полтави з розвиненою інфраструктурою.

      Основні характеристики:
      - загальна площа: 65,3…

      Детальніше

      ул. Чорновола (г. Полтава, Октябрьский район) - Продається квартира, 75000 $ - АФНУ

      Оновлено: 24 вересня

      Розміщено: 18 липня

      Продається квартира

      2 кімн., площа 48.2/27.3/7.7, поверх 4/9

      г. Полтава, ул. Чорновола

      75000 $

      Остапченко Александр Степанович

      соучредитель (Агентство недвижимости "Альянс риэлти" Полтава)

      Продаж 2 кімнатної квартири (апартаменти з однією спальнею) в будинку бізнес класу, в Центрі Полтави, р-н вул. Чорновола, поряд з гімназією №6
      Характеристика квартири:
      - загальна площа – 48,20 кв.м;…

      Детальніше

      ул. Чорновола (г. Полтава, Октябрьский район) - Продається квартира, 75000 $ - АФНУ

      Оновлено: 24 вересня

      Розміщено: 22 липня

      Продається квартира

      2 кімн., площа 48.2/27.3/7.7, поверх 4/9

      г. Полтава, ул. Чорновола

      75000 $

      Остапченко Александр Степанович

      соучредитель (Агентство недвижимости "Альянс риэлти" Полтава)

      Продаж 2 кімнатної квартири (апартаменти з однією спальнею) в будинку бізнес класу, в Центрі Полтави, р-н вул. Чорновола, поряд з гімназією 6
      Характеристика квартири:
      - загальна площа 48, 20 кв.м;…

      Детальніше

      Коментарі