Вхід на сайт

Ел. пошта:
Пароль:

Реєстрація на сайті

Призвіще: Область:
Ім'я: Населений пункт:
    По батькові: Номер телефону:
    Ел. пошта: Компанія:
      Пароль: Посада:
      Повторіть пароль: Рік початку роботи:
      Фото:
      З правилами розміщення об'єктів погоджуюсь

      Забули пароль?

      Вкажіть ел. пошту — ми надішлемо Вам новий пароль для входу
      Ел. пошта:

      Проблема на сайті

      Закрити
      Ваш e-mail:
      (необов'язково)
      Розкажіть нам, що сталось
      112_1.jpg

      без комісії ул. Лисенка — Продається квартира

      (г. Львов, Галицкий район)

      115500 $

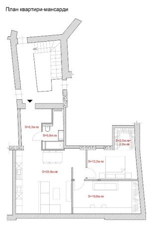
      Загальна площа: 90 кв.м

      Жила площа: 68.3 кв.м

      Площа кухні: 33.5 кв.м

      Кімнат: 2

      Поверх: 4

      К-ть поверхів: 4

      Продаж 2 кімнатної квартири мансарди.
      Австрійський люкс знаходиться на вул. Лисенка, ближній центр, в тихому, затишному місці на пагорбі.
      В квартирі зроблений дизайнерський ремонт, використовувалися тільки якісні матеріали. На кухні вбудована техніка привезена з Німеччини фірми Bosch, змішувачі Hansgrohe. Встановлене індивідуальне опалення: газовий двоконтурний котел Valliant.
      Зроблене просторе планування, велика кухня-вітальна. В квартирі дві окремі спальні: одна головна з дворівневим гардеробом і гостьова. Вікна відомої компанії – Rotto. На підлозі дубовий масив. На вікнах та вхідних дверях виведена сигналізація. В квартирі передбачені виводи під кондиціонер в кожній кімнаті та на кухні. В головній спальні родзинкою є гардероб який зроблений в стелі. Вся побутова техніка і меблі залишаються. Торг для майбутніх власників.
      Величезним плюсом цієї квартири є тераса площею 10м2 з якої видно увесь Львів.

      Надіслати скаргу

      Закрити
      Поскаржитися на об'єкт «ул. Лисенка (г. Львов, Галицкий район)»
      Ваш коментар:(Необов'язково)
      Ваша скарга буде надіслана ріелтору, що розмістив об'єкт, а також адміністрації сайту АФНУ.
      Ваше ім'я:
      (Обов'язково)
      Ваш e-mail для відповіді:
      (Обов'язково)

      Коментарі