Вхід на сайт

Ел. пошта:
Пароль:

Реєстрація на сайті

Призвіще: Область:
Ім'я: Населений пункт:
    По батькові: Номер телефону:
    Ел. пошта: Компанія:
      Пароль: Посада:
      Повторіть пароль: Рік початку роботи:
      Фото:
      З правилами розміщення об'єктів погоджуюсь

      Забули пароль?

      Вкажіть ел. пошту — ми надішлемо Вам новий пароль для входу
      Ел. пошта:

      Проблема на сайті

      Закрити
      Ваш e-mail:
      (необов'язково)
      Розкажіть нам, що сталось
      112_1.jpg

      пр. Победы — Продається торгівельний майданчик

      (г. Кривой Рог, Ингулецкий район)

      70000 $

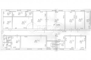
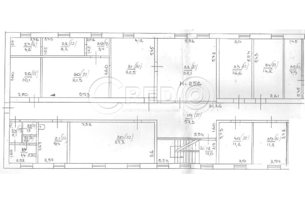
      Загальна площа: 335 кв.м

      Поверх: 1

      К-ть поверхів: 2

      Пропонуємо на продаж 1/2 частину окремо розташованої 2-х поверхової торгово-офісної будівлі по пр. Перемоги (Інгулець, центр)

      Про об'єкт:
      - загальна площа - 335,45 кв.м.
      - 1-й поверх – 70кв.м.
      - 2-й поверх – 265,45 кв.м.
      - земельна ділянка – 0,0362га.

      Особливості:
      - кожен поверх має свій індивідуальний вхід та комунікації.

      Комунікації:
      - опалення газове (котел).
      - електроенергія
      - центральна вода, каналізація
      - кондиціювання
      - пожежна та охоронна сигналізації.

      Локація:
      будівля розташована поруч із парком, за 30м від "червоної лінії".
      Продаж 70 000$

      За будь-якими питаннями за цією або схожими пропозиціями звертайтесь за номером телефону 067 696 16 51.
      З повагою, команда Credo!

      Надіслати скаргу

      Закрити
      Поскаржитися на об'єкт «пр. Победы (г. Кривой Рог, Ингулецкий район)»
      Ваш коментар:(Необов'язково)
      Ваша скарга буде надіслана ріелтору, що розмістив об'єкт, а також адміністрації сайту АФНУ.
      Ваше ім'я:
      (Обов'язково)
      Ваш e-mail для відповіді:
      (Обов'язково)

      Вам также могут подойти

      ул. Корнейчука (г. Кривой Рог, Саксаганский район) - Продається торгівельний майданчик, 59000 $ - АФНУ

      Оновлено: 1 квітня

      Розміщено: 16 серпня 2021

      Продається торгівельний майданчик

      площа 113, поверх 1/9

      г. Кривой Рог, ул. Корнейчука

      59000 $

      Літвинова Ірина Вікторівна

      Продається нежитлове приміщення по вул. І.Авраменка (Корнійчука).

      Технічні характеристики:
      - Приміщення розташоване на 1/9-ти пов. будинку.
      - Загальна площа 113,8кв.м.,

      Планування об’єкту: великий хол, кабінети, кухня, підсобне приміщення, сан/вузол.

      Комунікації:…

      Детальніше

      пл. Артема (г. Кривой Рог, Саксаганский район) - Продається торгівельний майданчик, 75000 € - АФНУ

      Оновлено: 25 березня

      Розміщено: 8 травня 2025

      Продається торгівельний майданчик

      площа 101, поверх 1/4

      г. Кривой Рог, пл. Артема

      75000 €

      Літвинова Ірина Вікторівна

      Продаж нежитлового приміщення площа В.Великого «Червона лінія».

      Приміщення кутове, має два входи, парковка.
      Великий пішохідний та автомобільний трафік.

      Особливості об’єкту:
      - Розташоване на 1/5-ти поверхового будинку
      - Загальна площа 101.1кв.м.…

      Детальніше

      ул. Харитонова (г. Кривой Рог, Центрально-Городской район) - Продається торгівельний майданчик, 57000 $ - АФНУ

      Оновлено: 27 лютого

      Розміщено: 13 травня 2025

      Продається торгівельний майданчик

      площа 103, поверх 1/5

      г. Кривой Рог, ул. Харитонова

      57000 $

      Літвинова Ірина Вікторівна

      Продаж приміщення, вул. П. Калнишевського, Ц.-Міський р-н

      Технічні характеристики:
      - Нежитлове приміщення заг.пл. - 103,17кв.м.
      - Вбудоване в 1 поверх 5 поверхового будинку.
      - Розташоване в торці будинку.
      - Вітражні…

      Детальніше

      Коментарі