Вхід на сайт

Ел. пошта:
Пароль:

Реєстрація на сайті

Призвіще: Область:
Ім'я: Населений пункт:
    По батькові: Номер телефону:
    Ел. пошта: Компанія:
      Пароль: Посада:
      Повторіть пароль: Рік початку роботи:
      Фото:
      З правилами розміщення об'єктів погоджуюсь

      Забули пароль?

      Вкажіть ел. пошту — ми надішлемо Вам новий пароль для входу
      Ел. пошта:

      Проблема на сайті

      Закрити
      Ваш e-mail:
      (необов'язково)
      Розкажіть нам, що сталось
      112_1.jpg

      без комісії ул. Корнейчука — Продається торгівельний майданчик

      (г. Кривой Рог, Саксаганский район)

      490 $ за кв.м.

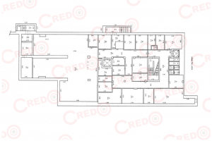
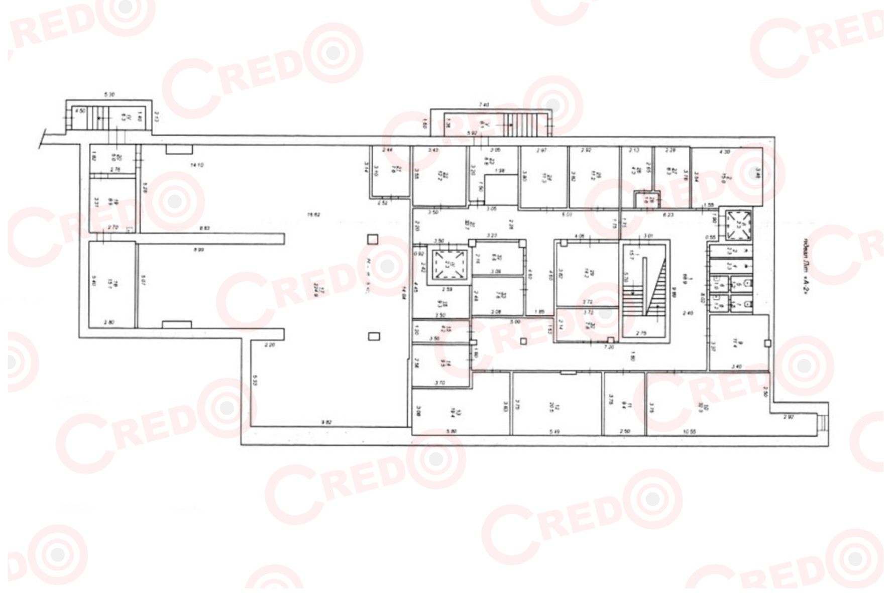
      Загальна площа: 2017 кв.м

      Поверх: 1

      К-ть поверхів: 2

      Предлагается к продаже 1-й этаж Торгового Центра по ул. И. Авраменка (Корнейчука) на "Вечернем".
      Общая площадь 2017,8кв.м., из них 1386,6кв.м. занимает 1-й этаж и 631,2кв.м. подвальное помещение.
      Комплекс в хорошем, ухоженном состоянии.
      Основное помещение свободной планировки, колонного типа с большим витражным фасадом на два входа.
      Коммуникации: электроэнергия 2 ввода, 250кВт, вода, центральная канализация, 3 с/у, душевая, отопление отключено, вытяжная система кондиционирования.
      Грузовой лифт, рампа во дворе.
      Торговый Центр расположен в густонаселенном районе города, с удобной транспортной развязкой.
      Напротив много магазинов, рынок, супермаркет VARUS, рядом маг. "Линкор", "Святошино", Скоростной Трамвай, автостоянка. Высокая проходимость населения.
      Действующий договор аренды земли.
      Комплекс всегда заполнен арендаторами, дает стабильную аренду.
      Цена 490$ за 1 кв.м.
      тел. 067-638-50-54

      Этот и другие объекты вы можете увидеть на сайте www.ancredo.com

      Надіслати скаргу

      Закрити
      Поскаржитися на об'єкт «ул. Корнейчука (г. Кривой Рог, Саксаганский район)»
      Ваш коментар:(Необов'язково)
      Ваша скарга буде надіслана ріелтору, що розмістив об'єкт, а також адміністрації сайту АФНУ.
      Ваше ім'я:
      (Обов'язково)
      Ваш e-mail для відповіді:
      (Обов'язково)

      Вам также могут подойти

      ул. Електрозаводська (г. Кривой Рог, Жовтневый район) - Здається торгівельний майданчик, 500 грн. за кв.м. - АФНУ

      Оновлено: 27 лютого

      Розміщено: 15 травня 2025

      Здається торгівельний майданчик

      площа 2106, поверх -/3

      г. Кривой Рог, ул. Електрозаводська

      500 грн. за кв.м.

      Літвинова Ірина Вікторівна

      Оренда торгівельних площ в окремій будівлі на "Зарічному".

      - Покровський район
      - вул. Електрозаводська, 3а
      - розташована будівля на перехресті вулиць 5-й Зарічний; вул.Електрозаводська та вул.Десантна

      Про об’єкт:
      - 3-х…

      Детальніше

      ул. Тимирязева (г. Кривой Рог, Терновской район) - Здається торгівельний майданчик, 500 грн. за кв.м. - АФНУ

      Оновлено: 25 лютого

      Розміщено: 16 липня 2025

      Здається торгівельний майданчик

      площа 130, поверх 1/5

      г. Кривой Рог, ул. Тимирязева

      500 грн. за кв.м.

      Літвинова Ірина Вікторівна

      Оренда приміщеннь на "Роковатій"
      - Тернівський район
      - вул. Тімірязєва

      Технічні характеристики:
      - перший поверх 5-х поверхового житлового будинку
      - проїздна частина

      Планування об’єкту:
      - загальна площа -130 кв.м
      -…

      Детальніше

      ул. Харитонова (г. Кривой Рог, Центрально-Городской район) - Здається торгівельний майданчик, 400 грн. за кв.м. - АФНУ

      Оновлено: 4 березня

      Розміщено: 14 жовтня 2025

      Здається торгівельний майданчик

      площа 100, поверх 1/5

      г. Кривой Рог, ул. Харитонова

      400 грн. за кв.м.

      Літвинова Ірина Вікторівна

      Оренда магазину вул.П.Калнишевського,5
      - Центрально Міський район
      - площа захисників України (Визволення)
      - "червона лінія"

      Технічні характеристики:
      - перший поверх 5-ти поверхового житлового будинку
      - приміщення після капітального ремонту (ведуться…

      Детальніше

      Коментарі