Вхід на сайт

Ел. пошта:
Пароль:

Реєстрація на сайті

Призвіще: Область:
Ім'я: Населений пункт:
    По батькові: Номер телефону:
    Ел. пошта: Компанія:
      Пароль: Посада:
      Повторіть пароль: Рік початку роботи:
      Фото:
      З правилами розміщення об'єктів погоджуюсь

      Забули пароль?

      Вкажіть ел. пошту — ми надішлемо Вам новий пароль для входу
      Ел. пошта:

      Проблема на сайті

      Закрити
      Ваш e-mail:
      (необов'язково)
      Розкажіть нам, що сталось
      112_1.jpg

      без комісії Юлиана Матвийчука — Продається квартира

      (г. Полтава, Октябрьский район)

      70000 $

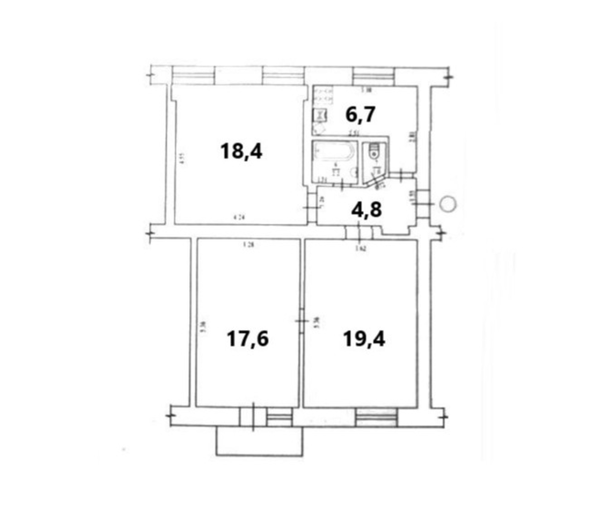
      Загальна площа: 71 кв.м

      Жила площа: 55.4 кв.м

      Площа кухні: 6.7 кв.м

      Кімнат: 3

      Поверх: 4

      К-ть поверхів: 5

      ПРОДАМ 3-КІМНАТНУ КВАРТИРУ В ЦЕНТРІ ПОЛТАВИ

      Локація: вул. Юліана Матвійчука (на розі вулиць Юліана Матвійчука та Котляревського) комфортний та затишний район для життя в самому центрі міста з автономним опаленням.

      Загальна площа 71 м²
      -4 поверх із 5
      -висота стелі 2, 6 м
      -перекриття залізобетонні
      -квартира не кутова

      Планування:
      -дві окремі кімнати 19, 4 м² та 18, 4 м²
      -третя кімната 17, 6 м²
      -коридор 4, 8 м²
      -балкон засклений

      Вікна квартири виходять на сквер та памятник ім. Лялі Убийвовк, що забезпечує приємний краєвид, більше світла та відсутність щільної забудови перед будинком.

      Квартира простора та світла, з вдалим плануванням. Підходить як для комфортного проживання родини, так і для інвестиції під оренду.

      Надіслати скаргу

      Закрити
      Поскаржитися на об'єкт «Юлиана Матвийчука (г. Полтава, Октябрьский район)»
      Ваш коментар:(Необов'язково)
      Ваша скарга буде надіслана ріелтору, що розмістив об'єкт, а також адміністрації сайту АФНУ.
      Ваше ім'я:
      (Обов'язково)
      Ваш e-mail для відповіді:
      (Обов'язково)

      Вам также могут подойти

      ул. Короленко (г. Полтава, Октябрьский район) - Продається квартира, 57000 $ - АФНУ

      Оновлено: 6 квітня

      Розміщено: 19 грудня 2025

      Продається квартира

      2 кімн., площа 63/28/6, поверх 1/3

      г. Полтава, ул. Короленко

      57000 $

      Остапченко Александр Степанович

      соучредитель (Агентство недвижимости "Альянс риэлти" Полтава)

      ПРОДАМ 2-КІМНАТНУ КВАРТИРУ ТИПУ ТАУНХАУС з додатковим приватним виходом (дивись на плані вхід 2) у задній дворик (палісадник) у ЦЕНТРІ ПОЛТАВИ
      Розташування:
      вул. Короленка, поруч із Березовим сквером — комфортне…

      Детальніше

      ул. Короленко (г. Полтава, Октябрьский район) - Продається квартира, 57000 $ - АФНУ

      Оновлено: 6 квітня

      Розміщено: 19 грудня 2025

      Продається квартира

      2 кімн., площа 63/28/6, поверх 1/3

      г. Полтава, ул. Короленко

      57000 $

      Остапченко Александр Степанович

      соучредитель (Агентство недвижимости "Альянс риэлти" Полтава)

      ПРОДАМ 2-КІМНАТНУ КВАРТИРУ ТИПУ ТАУНХАУС з додатковим приватним виходом (дивись на плані вхід 2) у задній дворик (палісадник) у ЦЕНТРІ ПОЛТАВИ
      Розташування:
      вул. Короленка, поруч із Березовим сквером — комфортне…

      Детальніше

      Коментарі