Вхід на сайт

Ел. пошта:
Пароль:

Реєстрація на сайті

Призвіще: Область:
Ім'я: Населений пункт:
    По батькові: Номер телефону:
    Ел. пошта: Компанія:
      Пароль: Посада:
      Повторіть пароль: Рік початку роботи:
      Фото:
      З правилами розміщення об'єктів погоджуюсь

      Забули пароль?

      Вкажіть ел. пошту — ми надішлемо Вам новий пароль для входу
      Ел. пошта:

      Проблема на сайті

      Закрити
      Ваш e-mail:
      (необов'язково)
      Розкажіть нам, що сталось
      112_1.jpg

      Криворіжсталі — Продається склад

      (г. Кривой Рог, Дзержинский район)

      14000 $

      К-ть поверхів: 5

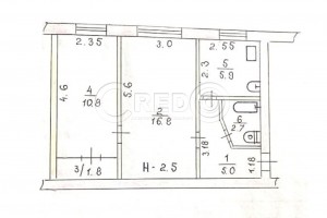
      Пропонується до продажу вбудоване нежитлове приміщення
      (склад) в районі вокзалу "Червона" по вулиці Криворіжсталі,9.

      Будинок в самому центрі мікрорайону "Червона", Металургійний
      район. Поряд транспортна розв'язка вокзалу, завод.

      Перший поверх будівлі зайнятий виключно комерційними
      об'єктами. Є можливість придбання сусіднього приміщення
      для збільшеня площі (офісне приміщення).

      Про об'єкт:
      - 1 поверх 5типоверхового будинку.
      - загальна площа 43 м.кв.
      - приміщення 16.8 + 10.8 + 5.9 м.кв.
      - зараз обаднаний і використовується як склад.
      - вхід з під'їзду.
      - всі приміщення виходять у двір.
      - вікна захищенні металічними ставнями.

      Ціна продажу 14 000$.
      Розглянемо ваші пропозиції.
      За будь-якими питаннями за цією або іншими пропозиціями звертайтесь за номером телефону, де відповість наш ріелтор 067 982 17 19.

      З повагою, команда Credo!

      Надіслати скаргу

      Закрити
      Поскаржитися на об'єкт «Криворіжсталі (г. Кривой Рог, Дзержинский район)»
      Ваш коментар:(Необов'язково)
      Ваша скарга буде надіслана ріелтору, що розмістив об'єкт, а також адміністрації сайту АФНУ.
      Ваше ім'я:
      (Обов'язково)
      Ваш e-mail для відповіді:
      (Обов'язково)

      Вам также могут подойти

      ул. Новороссийская (г. Кривой Рог, Центрально-Городской район) - Продається склад, 12500 $ - АФНУ

      Оновлено: 18 березня

      Розміщено: 2 травня 2025

      Продається склад

      г. Кривой Рог, ул. Новороссийская

      12500 $

      Літвинова Ірина Вікторівна

      Продається склад по вул. Верхньобазарна, Центрально міський район.

      Про об'єкт:
      - Загальна площа складу 201,3кв.м.
      - Висота приміщення 3.65м.

      Комунікації:
      - Електроенергія.
      - Водопостачання.

      Особливості:
      - Територія огорожена, асфальтована, під…

      Детальніше

      Коментарі