Вхід на сайт

Ел. пошта:
Пароль:

Реєстрація на сайті

Призвіще: Область:
Ім'я: Населений пункт:
    По батькові: Номер телефону:
    Ел. пошта: Компанія:
      Пароль: Посада:
      Повторіть пароль: Рік початку роботи:
      Фото:
      З правилами розміщення об'єктів погоджуюсь

      Забули пароль?

      Вкажіть ел. пошту — ми надішлемо Вам новий пароль для входу
      Ел. пошта:

      Проблема на сайті

      Закрити
      Ваш e-mail:
      (необов'язково)
      Розкажіть нам, що сталось
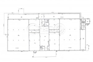
      112_1.jpg

      Окружна — Продається склад

      (г. Кривой Рог, Центрально-Городской район)

      80 $ за кв.м.

      Загальна площа: 3720 кв.м

      К-ть поверхів: 1

      Продаж складського комплексу вул. Окружна "Смичка"
      - м.Кривий Ріг
      - Центрально Міський район
      - вул.Окружна,3

      Технічні характеристики:
      - окремо разтошована капітальна будівля
      - знаходиться на території складів
      - склад в робочому стані
      - офісні приміщення, с/вузол, роздягальня для персоналу
      - котельня
      - гараж
      - рампа
      - парковка біля складу

      Планування об’єкту:
      - загальна площа -3720 кв.м
      - гараж-123 кв.м
      - земельна ділянка-5886 кв.м

      Комунікації:
      - опалення - твердопаливний котел (опаленя офісних приміщень)
      - центральне електропостачання 30кВт; 380 Вт
      - центральне водопостачання, каналізація
      - охоронна сигналізація
      - кондиціонери в офісах

      Логістична розв’язка:
      - приміщення розташоване в промисловій зоні
      - поруч зупинки громадського транспорту
      - виїзд на Кіровоградську трасу
      Продаж 80 у.о./кв.м

      За будь-якими питаннями за цією або іншими пропозиціями звертайтесь за номером телефону 067 696 16 51.
      З повагою, команда Credo!

      Надіслати скаргу

      Закрити
      Поскаржитися на об'єкт «Окружна (г. Кривой Рог, Центрально-Городской район)»
      Ваш коментар:(Необов'язково)
      Ваша скарга буде надіслана ріелтору, що розмістив об'єкт, а також адміністрації сайту АФНУ.
      Ваше ім'я:
      (Обов'язково)
      Ваш e-mail для відповіді:
      (Обов'язково)

      Коментарі