Вхід на сайт

Ел. пошта:
Пароль:

Реєстрація на сайті

Призвіще: Область:
Ім'я: Населений пункт:
    По батькові: Номер телефону:
    Ел. пошта: Компанія:
      Пароль: Посада:
      Повторіть пароль: Рік початку роботи:
      Фото:
      З правилами розміщення об'єктів погоджуюсь

      Забули пароль?

      Вкажіть ел. пошту — ми надішлемо Вам новий пароль для входу
      Ел. пошта:

      Проблема на сайті

      Закрити
      Ваш e-mail:
      (необов'язково)
      Розкажіть нам, що сталось
      112_1.jpg

      без комісії Трояндова, 1 — Продається квартира

      (с. Чубинское, Бориспольский район)

      59000 $

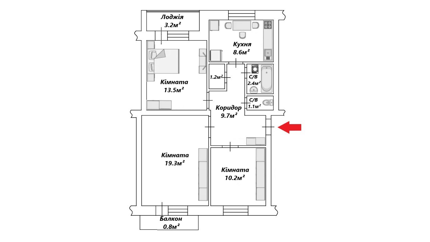
      Загальна площа: 70 кв.м

      Жила площа: 43 кв.м

      Площа кухні: 8 кв.м

      Кімнат: 3

      Поверх: 2

      К-ть поверхів: 2

      Продаж 3-х кімнатної квартири Велика Олександрівка, вул. Трояндова (Кочнева),1 Бориспільський р-н.

      Цегляний будинок 1992року.
      Поверх- 2/2.
      Площа- 70/43/8,6

      Зроблений косметичний ремонт 2024р, нова електрика та сантехніка, підлога -ламінат, в санвузлі мозаїка та ванна, нові радіатори, столярка та шпалери.
      Планування: 3 окремі кімнати, кухня, санвузол роздільний, балкон, лоджия.
      Опалення- газовий котел, вода- свердловина на 3 будинки.
      Утеплена стіна квартири з вулиці.
      Бонус- додаткове приміщення в підвалі і власний погріб на вулиці.

      Поруч ліцей, школа мистецтв, дитячий садок, футбольне поле, аптека, Нова Пошта, Укрпошта. Базар в центрі 2-3 рази на тиждень.
      Зупинка автобуса на Київ- 600м, до електрички- 20хвилин пішки (зупинка Чубинський), до метро Бориспільська 20хв їзди маршруткою.

      Ціна 59.000$ Без комісії для покупця. Представник власника Тимофій Садіков

      Надіслати скаргу

      Закрити
      Поскаржитися на об'єкт «Трояндова, 1 (с. Чубинское, Бориспольский район)»
      Ваш коментар:(Необов'язково)
      Ваша скарга буде надіслана ріелтору, що розмістив об'єкт, а також адміністрації сайту АФНУ.
      Ваше ім'я:
      (Обов'язково)
      Ваш e-mail для відповіді:
      (Обов'язково)

      Коментарі