Вхід на сайт

Ел. пошта:
Пароль:

Реєстрація на сайті

Призвіще: Область:
Ім'я: Населений пункт:
    По батькові: Номер телефону:
    Ел. пошта: Компанія:
      Пароль: Посада:
      Повторіть пароль: Рік початку роботи:
      Фото:
      З правилами розміщення об'єктів погоджуюсь

      Забули пароль?

      Вкажіть ел. пошту — ми надішлемо Вам новий пароль для входу
      Ел. пошта:

      Проблема на сайті

      Закрити
      Ваш e-mail:
      (необов'язково)
      Розкажіть нам, що сталось
      112_1.jpg

      Романа Шехевича, 19 — Здається склад

      (г. Хмельницкий, Гречани)

      250 грн. за кв.м.

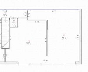
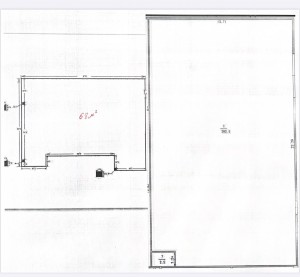
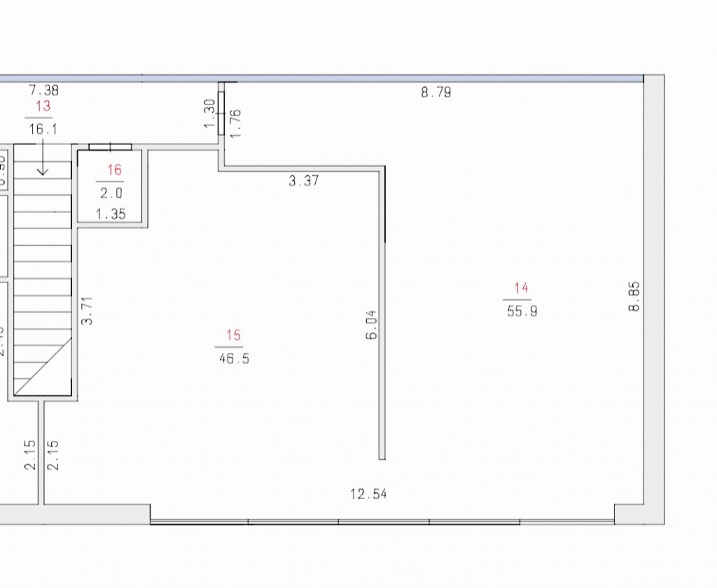
      Загальна площа: 461 кв.м

      К-ть поверхів: 2

      Оренда комерційного приміщення склад 351 м.кв та офіси 110 м.кв на 2 поверсі р-н Гречани вул.
      Шухевича (Курчатова) 19.
      Окремо стояча 2-х поверхова будівля (новобудова), Фасадна будівля.
      Склад: має два об’єднанні приміщення 280 м.кв і 68 м.кв, є два заїзди для великогабаритного транспорту, об лаштований стелажами, промислова стяжка підлоги, 40 кВт електрики, висота 4,5 метрів, відео нагляд, сигналізація, санвузол.
      Офіс: має два кабінети 55,9 м.кв та 48,5 м.кв, панорамні фасадні вікна, кондиціонер, опалення індивідуальне (електричний котел). Доступ 24/7.
      Ціна 250 грн/м.кв+ комунальні платежі (світло і вода по лічильникам)
      Оплата: 1й і останній місяць + комісійні агентства 75%

      Надіслати скаргу

      Закрити
      Поскаржитися на об'єкт «Романа Шехевича, 19 (г. Хмельницкий, Гречани)»
      Ваш коментар:(Необов'язково)
      Ваша скарга буде надіслана ріелтору, що розмістив об'єкт, а також адміністрації сайту АФНУ.
      Ваше ім'я:
      (Обов'язково)
      Ваш e-mail для відповіді:
      (Обов'язково)

      Коментарі