Вхід на сайт

Ел. пошта:
Пароль:

Реєстрація на сайті

Призвіще: Область:
Ім'я: Населений пункт:
    По батькові: Номер телефону:
    Ел. пошта: Компанія:
      Пароль: Посада:
      Повторіть пароль: Рік початку роботи:
      Фото:
      З правилами розміщення об'єктів погоджуюсь

      Забули пароль?

      Вкажіть ел. пошту — ми надішлемо Вам новий пароль для входу
      Ел. пошта:

      Проблема на сайті

      Закрити
      Ваш e-mail:
      (необов'язково)
      Розкажіть нам, що сталось
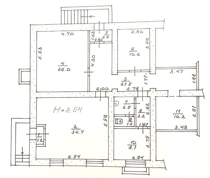
      112_1.jpg

      ул. Тесленко — Продається офіс

      (г. Кривой Рог, Саксаганский район)

      18500 $

      Загальна площа: 121 кв.м

      Продаж нежитлового приміщення вул. Тесленка «Артем»
      Вбудоване в цокольний поверх 5-ти поверхового будинку. Кутове.

      Особливості об’єкту:
      - Загальна площа 121.2кв.м.
      - Висота стелі Н- 2.54м.

      Технічні характеристики:
      - Без опалення
      - На вікнах встановлені ролети

      Комунікації:
      - Водопостачання
      - Центральна каналізація
      - Електроенергія 8.5кВт

      Продаж – 18 500 $

      За будь-якими питаннями за цією або схожими пропозиціями звертайтесь за номером телефону, де вам відповість наш ріелтор 098 985 09 08.

      З повагою, команда АН Credo

      Надіслати скаргу

      Закрити
      Поскаржитися на об'єкт «ул. Тесленко (г. Кривой Рог, Саксаганский район)»
      Ваш коментар:(Необов'язково)
      Ваша скарга буде надіслана ріелтору, що розмістив об'єкт, а також адміністрації сайту АФНУ.
      Ваше ім'я:
      (Обов'язково)
      Ваш e-mail для відповіді:
      (Обов'язково)

      Вам также могут подойти

      пл. 95-Квартал (г. Кривой Рог, Саксаганский район) - Здається офіс, 20000 грн. - АФНУ

      Оновлено: 12 січня

      Розміщено: 12 січня

      Здається офіс

      1 кімн., площа 96, поверх 2/4

      г. Кривой Рог, пл. 95-Квартал

      20000 грн.

      Літвинова Ірина Вікторівна

      Оренда офісу в ТК на 95 кварталі
      - Саксаганський район
      - пл. 95 квартал
      - кільце "95 квартал"

      Технічні характиристики:
      - окрема будівля
      - 2 поверх 4-х поверхового будинку
      -…

      Детальніше

      пр. Карла Маркса (г. Кривой Рог, Центрально-Городской район) - Здається офіс, 15000 грн. - АФНУ

      Оновлено: 9 січня

      Розміщено: 6 червня 2025

      Здається офіс

      2 кімн., площа 67, поверх 1/5

      г. Кривой Рог, пр. Карла Маркса

      15000 грн.

      Літвинова Ірина Вікторівна

      Оренду приміщення по пр. Поштовий.

      Про об'єкт:
      - Центрально-Міський район
      - пр.Поштоаий
      - загальна площа - 67,9кв.м.

      Особливості:
      - підійде під офіс
      - медичний кабінет
      - прглядаеться з проїздної частини…

      Детальніше

      пл. 95-Квартал (г. Кривой Рог, Саксаганский район) - Здається офіс, 20000 грн. - АФНУ

      Оновлено: 12 січня

      Розміщено: 12 січня

      Здається офіс

      1 кімн., площа 96, поверх 2/4

      г. Кривой Рог, пл. 95-Квартал

      20000 грн.

      Літвинова Ірина Вікторівна

      Оренда офісу в ТК на 95 кварталі
      - Саксаганський район
      - пл. 95 квартал
      - кільце "95 квартал"

      Технічні характиристики:
      - окрема будівля
      - 2 поверх 4-х поверхового будинку
      -…

      Детальніше

      Коментарі