Вхід на сайт

Ел. пошта:
Пароль:

Реєстрація на сайті

Призвіще: Область:
Ім'я: Населений пункт:
    По батькові: Номер телефону:
    Ел. пошта: Компанія:
      Пароль: Посада:
      Повторіть пароль: Рік початку роботи:
      Фото:
      З правилами розміщення об'єктів погоджуюсь

      Забули пароль?

      Вкажіть ел. пошту — ми надішлемо Вам новий пароль для входу
      Ел. пошта:

      Проблема на сайті

      Закрити
      Ваш e-mail:
      (необов'язково)
      Розкажіть нам, що сталось
      112_1.jpg

      ул. Рокоссовского — Продається квартира

      (г. Кривой Рог, Саксаганский район)

      12500 $

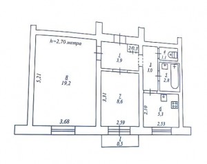
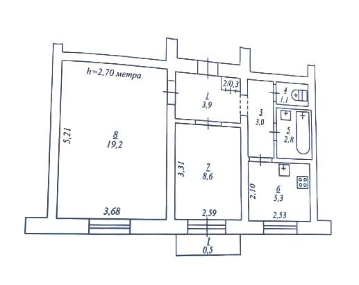
      Загальна площа: 44 кв.м

      Жила площа: 27 кв.м

      Площа кухні: 5 кв.м

      Кімнат: 2

      Поверх: 3

      К-ть поверхів: 3

      Продаж 2-кімнатної квартири — 96 квартал, вул. Рокосовського!
      Пропонуємо простору «сталінку» в цегляному будинку — ідеальний варіант для тих, хто цінує надійність, висоту стель і зручне розташування.

      Про об’єкт:
      Поверх: 3/3
      Загальна площа: 44,7 кв.м
      Житлова: 27,8 кв.м
      Кухня: 5,3 кв.м
      Замінені труби на металопластикові

      Комунікації:
      Центральне опалення
      Газ (лічильник)
      Водопостачання (лічильник)
      Електроенергія (лічильник)

      Локація:
      Квартира розташована у затишному районі — 96 квартал, поруч усе необхідне для комфортного життя:
      зупинка громадського транспорту,
      школи,
      супермаркети, аптеки,
      зручна транспортна розв’язка.

      Ціна: 12 500 $ (договірна)

      З усіх питань звертайтесь за телефоном — наш ріелтор із задоволенням відповість на ваші запитання 068 862 43 57.
      З повагою, команда CREDO!

      Надіслати скаргу

      Закрити
      Поскаржитися на об'єкт «ул. Рокоссовского (г. Кривой Рог, Саксаганский район)»
      Ваш коментар:(Необов'язково)
      Ваша скарга буде надіслана ріелтору, що розмістив об'єкт, а також адміністрації сайту АФНУ.
      Ваше ім'я:
      (Обов'язково)
      Ваш e-mail для відповіді:
      (Обов'язково)

      Вам также могут подойти

      ул. Ильичевская (г. Кривой Рог, Саксаганский район) - Продається квартира, 11000 $ - АФНУ

      Оновлено: 15 січня

      Розміщено: 28 травня 2025

      Продається квартира

      2 кімн., площа 50/28/5, поверх 2/2

      г. Кривой Рог, ул. Ильичевская

      11000 $

      Літвинова Ірина Вікторівна

      Продаж 2-х кімнатної квартири, Саксаганський район, вул.Гетьманська, Дзержинка.

      Про об’єкт:

      - Квартира розташована на 2/2 поверхового будинку.
      - Загальна площа 50,3кв.м.,
      - Житлова 28.2кв.м., всі кімнати окремі,
      - Кухня 5кв.м.,…

      Детальніше

      ул. 200 лет Кривого Рога (г. Кривой Рог, Саксаганский район) - Продається квартира, 13500 $ - АФНУ

      Оновлено: 24 грудня 2025

      Розміщено: 17 листопада 2025

      Продається квартира

      3 кімн., площа 60/42/7, поверх 9/9

      г. Кривой Рог, ул. 200 лет Кривого Рога

      13500 $

      Літвинова Ірина Вікторівна

      Продаж 3-х кімнатної квартири, пр. 200-річчя Кривого Рогу.

      Про об’єкт:
      - Квартира розташована на 9/9 поверхового будинку.
      - Загальна площа 60.47кв.м.,
      - житлова 42.7кв.м., всі кімнати окремі,
      - кухня 7кв.м.,…

      Детальніше

      ул. Ильичевская (г. Кривой Рог, Саксаганский район) - Продається квартира, 11000 $ - АФНУ

      Оновлено: 15 січня

      Розміщено: 28 травня 2025

      Продається квартира

      2 кімн., площа 50/28/5, поверх 2/2

      г. Кривой Рог, ул. Ильичевская

      11000 $

      Літвинова Ірина Вікторівна

      Продаж 2-х кімнатної квартири, Саксаганський район, вул.Гетьманська, Дзержинка.

      Про об’єкт:

      - Квартира розташована на 2/2 поверхового будинку.
      - Загальна площа 50,3кв.м.,
      - Житлова 28.2кв.м., всі кімнати окремі,
      - Кухня 5кв.м.,…

      Детальніше

      Коментарі