Вхід на сайт

Ел. пошта:
Пароль:

Реєстрація на сайті

Призвіще: Область:
Ім'я: Населений пункт:
    По батькові: Номер телефону:
    Ел. пошта: Компанія:
      Пароль: Посада:
      Повторіть пароль: Рік початку роботи:
      Фото:
      З правилами розміщення об'єктів погоджуюсь

      Забули пароль?

      Вкажіть ел. пошту — ми надішлемо Вам новий пароль для входу
      Ел. пошта:

      Проблема на сайті

      Закрити
      Ваш e-mail:
      (необов'язково)
      Розкажіть нам, що сталось
      112_1.jpg

      без комісії вул.Водопровідна, 20 — Продається будинок

      (г. Буча)

      80000 €

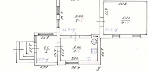
      Загальна площа: 56 кв.м

      Площа ділянки: 12 сот

      Кімнат: 2

      К-ть поверхів: 1

      ID:743 Пропонуємо Вашій увазі частину будинку по вулиці Водопровідна, місто Буча. Будинок: дерев’яний, обкладений цеглою, прибудова цегляна (утеплена пінопластом та оздоблена декоративною штукатуркою). Покрівля: шифер і метал. Зроблений косметичний ремонт - ідеальне рішення для тих, хто шукає готове житло. Загальна площа - 56,9м², в будинку дві кімнати, кухня, коридор, ванна та туалет. Ділянка 13 соток (приватизована), правильної і прямокутної форми, з фруктовими деревами та дуже гарним родючим ґрунтом. Підключене світло, газ (опалення в будинку від газового котла), вода централізована (встановлені лічильники), каналізація - септик, але є можливість підключитись до центральної каналізації. Основні переваги цієї нерухомості: локація надзвичайна, майже самий центр Бучі!, поряд школа, садочок, магазини, супермаркети ’’АТБ’’ і ’’NOVUS’’, торгівельні центри - ’’ЖИРАФ’’ та ’’ПАСАЖ’’, ринок, аптеки, зупинки маршрутного транспорту та залізничний вокзал, що робить всі необхідні місцеві сервіси легкодоступними.

      Надіслати скаргу

      Закрити
      Поскаржитися на об'єкт «вул.Водопровідна, 20 (г. Буча)»
      Ваш коментар:(Необов'язково)
      Ваша скарга буде надіслана ріелтору, що розмістив об'єкт, а також адміністрації сайту АФНУ.
      Ваше ім'я:
      (Обов'язково)
      Ваш e-mail для відповіді:
      (Обов'язково)

      Вам также могут подойти

      пров.Вокзальний, 7 (г. Буча) - Продається будинок, 70000 $ - АФНУ

      Оновлено: 14 січня

      Розміщено: 9 травня 2025

      Продається будинок

      г. Буча, пров.Вокзальний, 7

      70000 $ без комісії

      Черкавська Діана Миколаївна

      ID:230 Продаж будинку, м.Буча. Локація: тихе, затишне місце з розвиненою інфраструктурою - поруч магазини, школи, садочки, зупинки транспорту, залізничний вокзал. Загальна площа: 94,1м². Житлова площа: 32,7м². Ділянка 9,24 сотки (фасад…

      Детальніше

      Коментарі