Вхід на сайт

Ел. пошта:
Пароль:

Реєстрація на сайті

Призвіще: Область:
Ім'я: Населений пункт:
    По батькові: Номер телефону:
    Ел. пошта: Компанія:
      Пароль: Посада:
      Повторіть пароль: Рік початку роботи:
      Фото:
      З правилами розміщення об'єктів погоджуюсь

      Забули пароль?

      Вкажіть ел. пошту — ми надішлемо Вам новий пароль для входу
      Ел. пошта:

      Проблема на сайті

      Закрити
      Ваш e-mail:
      (необов'язково)
      Розкажіть нам, що сталось
      112_1.jpg

      ул. 22-го Партсъезда — Продається квартира

      (г. Кривой Рог, Дзержинский район)

      59999 $

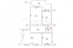
      Загальна площа: 76 кв.м

      Жила площа: 37 кв.м

      Площа кухні: 21 кв.м

      Кімнат: 3

      Поверх: 7

      К-ть поверхів: 12

      Продаж 3-х кімнатної квартири на "Соцмісті"
      - вул. Віталія Матусевича (муравейник)
      - Металургійний район

      Про об’єкт:
      - сучасна квартира в якій можна жити з першого дня купівлі
      - 7 поверх 12 поверхового будинку
      - не кутова
      - велика лоджія
      - покращене планування, з холом

      Планування об’єкту:
      - загальна площа - 76,2кв.м
      - житлова - 37,6 кв.м
      - кухня - вітальня - 21,5кв.м

      Комунікації:
      - центральне електропостачання
      - центральне водопостачання, каналізація
      - центральне опалення
      - відеонагляд

      Особливості квартири:
      - капітальний ремонт
      - кімнати окремі
      - санвузол сумісний
      - підлога ламінат
      - вікна, труби, сан/техніка, електрика - все нове
      - три кондиціонери
      - залишаються меблі, техніка
      - будинок ОСББ, в під'їзді ремонт

      Логістична розв’язка:
      - центральна частина міста з розвинутою інфраструктурою
      - зручний під'їзд для авто
      - у дворі дитячий майданчик, автостоянка
      - поруч супермаркет "Сільпо", розважальний комплекс, школи, дитячі садочки.

      Продаж $ 59 999 у.о.

      За будь-якими питаннями за цією або схожими пропозиціями звертайтесь за номером телефону 067 696 16 51.
      З повагою, команда Credo!

      Надіслати скаргу

      Закрити
      Поскаржитися на об'єкт «ул. 22-го Партсъезда (г. Кривой Рог, Дзержинский район)»
      Ваш коментар:(Необов'язково)
      Ваша скарга буде надіслана ріелтору, що розмістив об'єкт, а також адміністрації сайту АФНУ.
      Ваше ім'я:
      (Обов'язково)
      Ваш e-mail для відповіді:
      (Обов'язково)

      Вам также могут подойти

      мкрн. Сонячний (г. Кривой Рог, Саксаганский район) - Продається квартира, 49000 $ - АФНУ

      Оновлено: 7 жовтня

      Розміщено: 24 жовтня 2023

      Продається квартира

      5 кімн., площа 115/-/-, поверх 4/17

      г. Кривой Рог, мкрн. Сонячний

      49000 $

      Літвинова Ірина Вікторівна

      Продаж 5тикімнатної квартири (3 + 2) "Сонячний"

      Маємо цікаву пропозицію з продажу комфортного житла для великої родини!
      Мікрорайон "Сонячний". 4 поверх 17поверхового будинку. 5тикімнатна квартира, створена з двох окремих квартир,…

      Детальніше

      Коментарі