Вхід на сайт

Ел. пошта:
Пароль:

Реєстрація на сайті

Призвіще: Область:
Ім'я: Населений пункт:
    По батькові: Номер телефону:
    Ел. пошта: Компанія:
      Пароль: Посада:
      Повторіть пароль: Рік початку роботи:
      Фото:
      З правилами розміщення об'єктів погоджуюсь

      Забули пароль?

      Вкажіть ел. пошту — ми надішлемо Вам новий пароль для входу
      Ел. пошта:

      Проблема на сайті

      Закрити
      Ваш e-mail:
      (необов'язково)
      Розкажіть нам, що сталось
      112_1.jpg

      без комісії вул.Семеніївська, 5-а — Продається рекреаційний об'єкт

      (пгт. Ворзель, г. Ирпень)

      67000 $

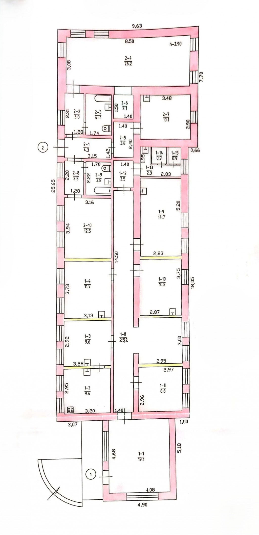
      Загальна площа: 192 кв.м

      К-ть поверхів: 1

      ID:205 Пропонуємо Вашій увазі комерційне приміщення у мальовничому Ворзелі, по вул.Семеніївська. Це ідеальний варіант для бізнесу, який цінує зручне розташування та легкий доступ до Варшавської траси. Площа будівлі 192,4м2. Побудовано приміщення в 1960р., потребує косметичного ремонту, розташоване на орендованій ділянці з можливістю права викупу. Усі необхідні комунікації вже заведені. Телефонуйте за вказаним в оголошенні номером, ми з радістю проконсультуємо Вас щодо цієї чудової пропозиції.

      Надіслати скаргу

      Закрити
      Поскаржитися на об'єкт «вул.Семеніївська, 5-а (пгт. Ворзель, г. Ирпень)»
      Ваш коментар:(Необов'язково)
      Ваша скарга буде надіслана ріелтору, що розмістив об'єкт, а також адміністрації сайту АФНУ.
      Ваше ім'я:
      (Обов'язково)
      Ваш e-mail для відповіді:
      (Обов'язково)

      Коментарі