Вхід на сайт

Ел. пошта:
Пароль:

Реєстрація на сайті

Призвіще: Область:
Ім'я: Населений пункт:
    По батькові: Номер телефону:
    Ел. пошта: Компанія:
      Пароль: Посада:
      Повторіть пароль: Рік початку роботи:
      Фото:
      З правилами розміщення об'єктів погоджуюсь

      Забули пароль?

      Вкажіть ел. пошту — ми надішлемо Вам новий пароль для входу
      Ел. пошта:

      Проблема на сайті

      Закрити
      Ваш e-mail:
      (необов'язково)
      Розкажіть нам, що сталось
      112_1.jpg

      без комісії вул.Набережна, 66 — Продається будинок

      (с. Телешовка, Ракитнянский район)

      19000 $

      Загальна площа: 60 кв.м

      Площа ділянки: 4 сот

      Кімнат: 4

      К-ть поверхів: 1

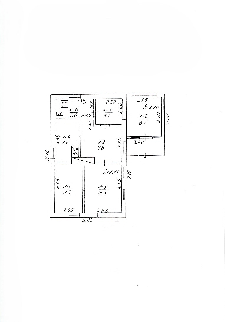
      ID:201 Продаж будинку 60м2 в селі Телешівка. Село знаходиться у Білоцерківському районі, Київської області, всього лише 77км від Києва. Село дуже мальовниче та оточене озерами, інфраструктура в селі розвинена, є магазини, школа, аптека, до районного центру лише 12км. Будинок розташований на 43 сотках землі та є свій вихід до річки, ділянка складається з двох актів - 14,92 під будівництво та 28,04 ОСГ, на ділянці є плодові дерева: яблуні, абрикоси, горіх. Будинок збудований у 1960р. з цегли, фундамент бутовий, заведений газ та світло, вода на вулиці з колодязя. У будинку є веранда, коридор, кухня та чотири кімнати, дві з яких прохідні. Але можна зробити перепланування на свій смак, тому що, перегородкові стіни не несущі. На ділянці є госп.будівлі та літня кухня, альтанка. Біля будинку асфальтований двір. Під'їзд до двору також з гарним асфальтом.

      Надіслати скаргу

      Закрити
      Поскаржитися на об'єкт «вул.Набережна, 66 (с. Телешовка, Ракитнянский район)»
      Ваш коментар:(Необов'язково)
      Ваша скарга буде надіслана ріелтору, що розмістив об'єкт, а також адміністрації сайту АФНУ.
      Ваше ім'я:
      (Обов'язково)
      Ваш e-mail для відповіді:
      (Обов'язково)

      Коментарі