Вхід на сайт

Ел. пошта:
Пароль:

Реєстрація на сайті

Призвіще: Область:
Ім'я: Населений пункт:
    По батькові: Номер телефону:
    Ел. пошта: Компанія:
      Пароль: Посада:
      Повторіть пароль: Рік початку роботи:
      Фото:
      З правилами розміщення об'єктів погоджуюсь

      Забули пароль?

      Вкажіть ел. пошту — ми надішлемо Вам новий пароль для входу
      Ел. пошта:

      Проблема на сайті

      Закрити
      Ваш e-mail:
      (необов'язково)
      Розкажіть нам, що сталось
      112_1.jpg

      пл. Артема — Продається торгівельний майданчик

      (г. Кривой Рог, Саксаганский район)

      75000 $

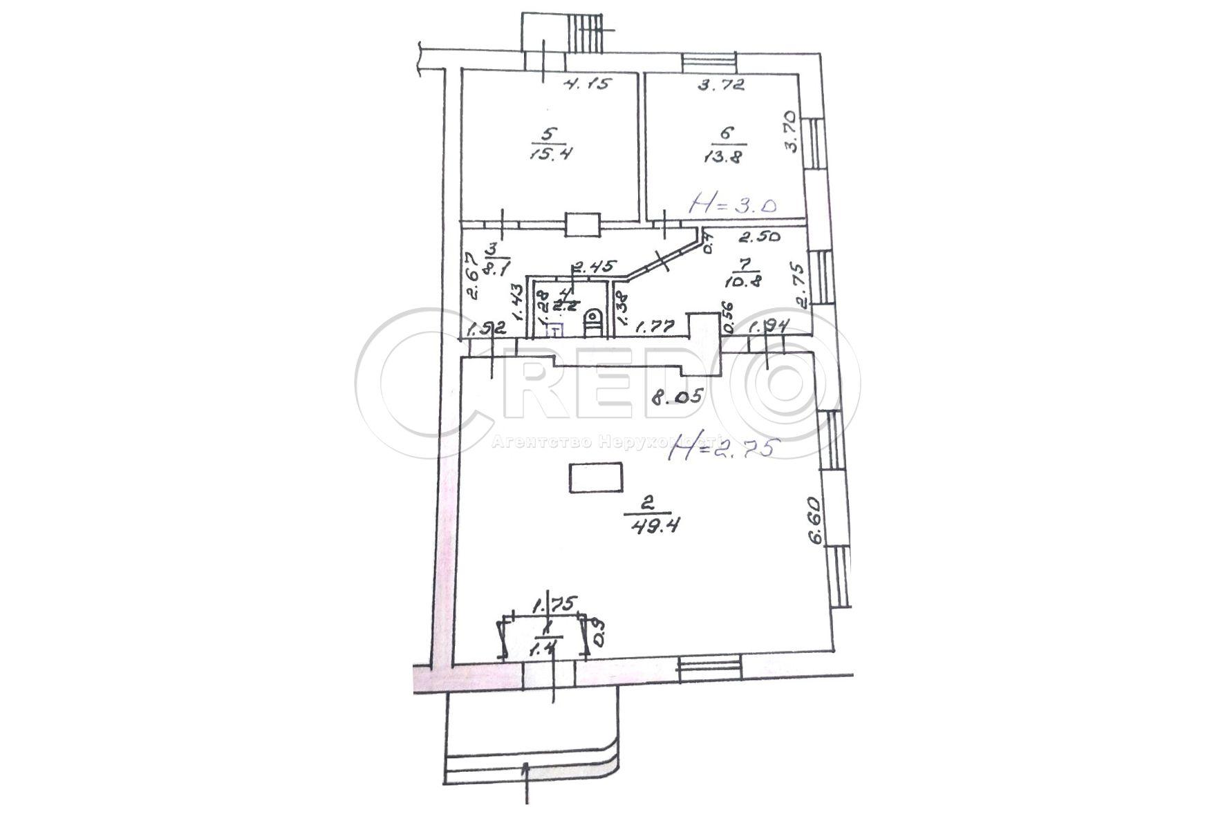
      Загальна площа: 101 кв.м

      Поверх: 1

      К-ть поверхів: 4

      Продаж нежитлового приміщення площа В.Великого «Червона лінія».

      Приміщення кутове, має два входи, парковка.
      Великий пішохідний та автомобільний трафік.

      Особливості об’єкту:
      - Розташоване на 1/5-ти поверхового будинку
      - Загальна площа 101.1кв.м.
      - Висота стелі Н- 2.75м.
      - Два входи
      - Пандус
      - Парковка біля приміщення

      Технічні характеристики:
      - Стіни гіпсокартон під покраску
      - На підлозі кахель
      - На вікнах ролети
      - Санвузол

      Комунікації:
      - Водопостачання
      - Центральна каналізація
      - Електроенергія: 5кВт
      - Центральне опалення
      - Кондиціонер

      - Локація:
      Поряд зупинка громадського транспорту, відділення банку, адмін.центр, аптека, салон краси, Палац культури, паркова зона, спортивний комплекс, кафе, суші бар, та інші магазини.

      - Продаж $ 75 000 договірна

      За деталями звертайтесь за телефоном 098 985 09 08.
      З повагою, команда CREDO!

      Надіслати скаргу

      Закрити
      Поскаржитися на об'єкт «пл. Артема (г. Кривой Рог, Саксаганский район)»
      Ваш коментар:(Необов'язково)
      Ваша скарга буде надіслана ріелтору, що розмістив об'єкт, а також адміністрації сайту АФНУ.
      Ваше ім'я:
      (Обов'язково)
      Ваш e-mail для відповіді:
      (Обов'язково)

      Вам также могут подойти

      пр. Победы (г. Кривой Рог, Ингулецкий район) - Продається торгівельний майданчик, 70000 $ - АФНУ

      Оновлено: 9 грудня 2025

      Розміщено: 12 вересня 2016

      Продається торгівельний майданчик

      площа 335, поверх 1/2

      г. Кривой Рог, пр. Победы

      70000 $

      Літвинова Ірина Вікторівна

      Пропонуємо на продаж 1/2 частину окремо розташованої 2-х поверхової торгово-офісної будівлі по пр. Перемоги (Інгулець, центр)

      Про об'єкт:
      - загальна площа - 335,45 кв.м.
      - 1-й поверх – 70кв.м.
      -…

      Детальніше

      ул. Товстановского (г. Кривой Рог, Жовтневый район) - Продається торгівельний майданчик, 85000 $ - АФНУ

      Оновлено: 9 січня

      Розміщено: 24 лютого 2021

      Продається торгівельний майданчик

      площа 983, поверх -/1

      г. Кривой Рог, ул. Товстановского

      85000 $

      Літвинова Ірина Вікторівна

      Продаж комплексу на Піонері вул. Кирило-Мефодіївська (Товстановського).
      Комплекс з боксами, гаражами, складами та побудовами.
      Земельна ділянка 45 соток з кадастровим номером, огороджена, асфальтована.

      Технічні характеристики:
      Загальна площа будівлі 983.8кв.м.

      Комунікації:…

      Детальніше

      ул. Лермонтова (г. Кривой Рог, Центрально-Городской район) - Продається торгівельний майданчик, 80000 $ - АФНУ

      Оновлено: 25 грудня 2025

      Розміщено: 14 травня 2025

      Продається торгівельний майданчик

      площа 160, поверх 1/5

      г. Кривой Рог, ул. Лермонтова

      80000 $

      Літвинова Ірина Вікторівна

      Продаж торгового приміщення в Центрально Міському районі
      - пр. Центральний (вул. Лермонтова)
      - зупинка "Центральний ринок"

      Технічні характеристики:
      - перший поверх п’ятиповерхового житлового будинку
      - окремий вхід

      Планування об’єкту:
      -…

      Детальніше

      Коментарі