Вхід на сайт

Ел. пошта:
Пароль:

Реєстрація на сайті

Призвіще: Область:
Ім'я: Населений пункт:
    По батькові: Номер телефону:
    Ел. пошта: Компанія:
      Пароль: Посада:
      Повторіть пароль: Рік початку роботи:
      Фото:
      З правилами розміщення об'єктів погоджуюсь

      Забули пароль?

      Вкажіть ел. пошту — ми надішлемо Вам новий пароль для входу
      Ел. пошта:

      Проблема на сайті

      Закрити
      Ваш e-mail:
      (необов'язково)
      Розкажіть нам, що сталось
      112_1.jpg

      без комісії Курортна, 112-а — Продається будинок

      (пгт. Ворзель, г. Ирпень)

      65000 $

      Загальна площа: 120 кв.м

      Площа ділянки: 8 сот

      Кімнат: 5

      К-ть поверхів: 1

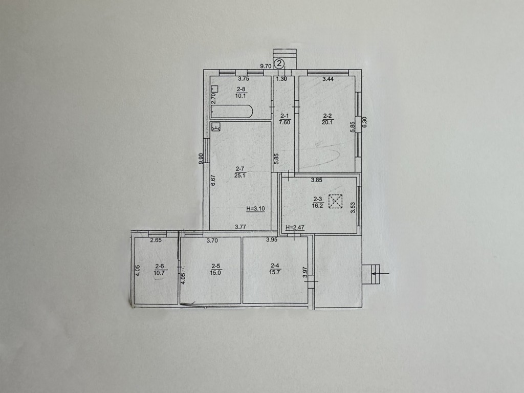
      ID:655 Продаж частини будинку в Ворзелі, яка розташована на 8 сотках землі. Загальна площа складає 120,5м2, з яких житлова 77,7м2 (5 кімнат), 3 окремі та дві прохідні, кухня-студія 25м2. Частково будинок дерев'яний обкладений цеглою, а нова добудова з цегли. Вікна всі замінені на металопластикові. Всі комунікації заведені, будинок повністю готовий для проживання. В дворі є додатково літня кухня з грубою та хоз.приміщення.

      Надіслати скаргу

      Закрити
      Поскаржитися на об'єкт «Курортна, 112-а (пгт. Ворзель, г. Ирпень)»
      Ваш коментар:(Необов'язково)
      Ваша скарга буде надіслана ріелтору, що розмістив об'єкт, а також адміністрації сайту АФНУ.
      Ваше ім'я:
      (Обов'язково)
      Ваш e-mail для відповіді:
      (Обов'язково)

      Вам также могут подойти

      вул.Яблунська, 41-а (пгт. Ворзель, г. Ирпень) - Продається будинок, 65000 $ - АФНУ

      Оновлено: 12 січня

      Розміщено: 1 травня 2025

      Продається будинок

      пгт. Ворзель, г. Ирпень, вул.Яблунська, 41-а

      65000 $ без комісії

      Черкавська Діана Миколаївна

      ID:696 Продаж цегляного будинку з міцним фундаментом, селище Ворзель, вул.Яблунська (Крупської). Загальна площа будинку 159,8м2, житлова 77,2м2, товщина стін в 1,5 цегли + повітряний прошарок, перекриття - бетонне, дах -…

      Детальніше

      Коментарі